En vente Appartement 3 pièces 65 m2
Ville | PARIS |
Code postal | 75007 |
Type de bien | Appartement |
Surface | 65 m2 |
Nombre de pièces | 3 pièces |
Prix | 997 500,00 € |
Informations sur l'annonceur | |
---|---|
Annonce de professionnel |
|
Agence |
ALG IMMOBILIER - ALG IMMOBILIER
Voir toutes les annonces |
Adresse | 13, rue du Docteur Roux |
93360 Neuilly Plaisance | |
Téléphone Fixe | 0764074583 |
Portable |
Description
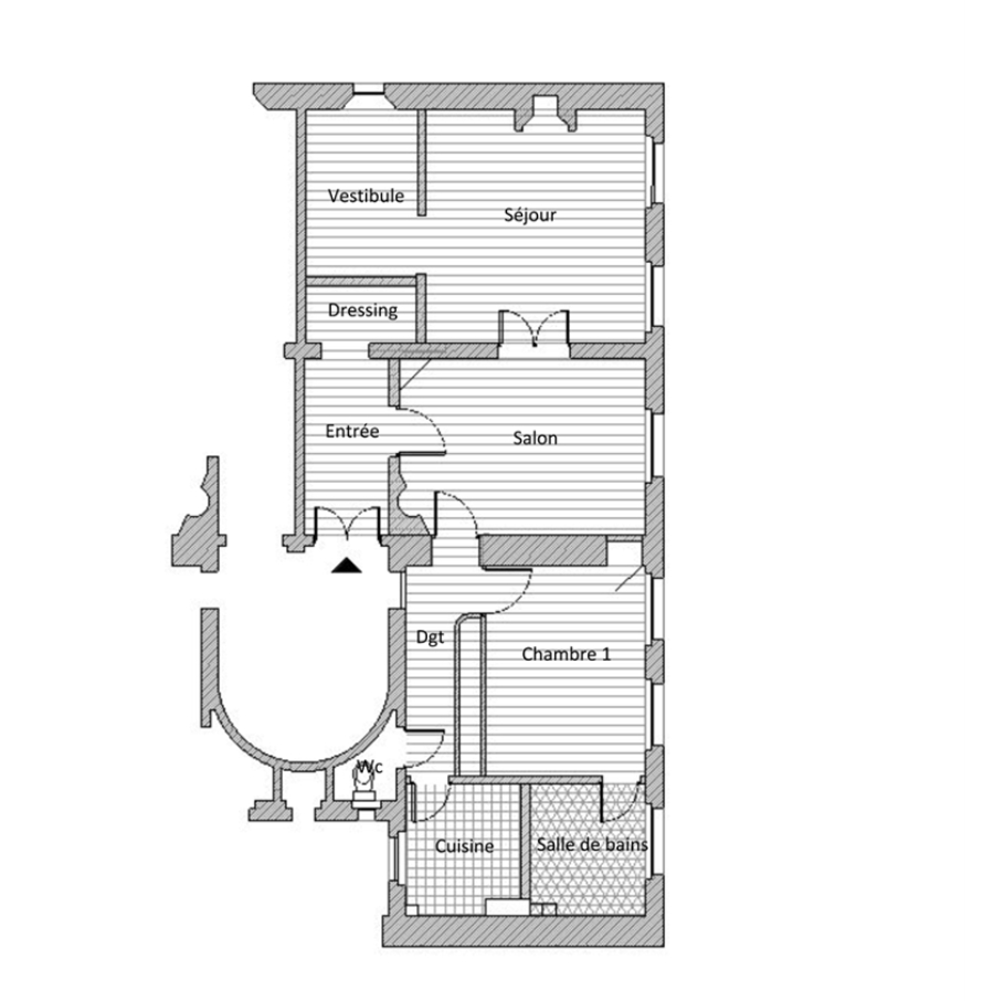
EXCLUSIVITE- JARDIN DU LUXEMBOURG Paris 6e- Appartement lumineux de 65,50m² au 2e étage, exposition plein sud Idéalement situé dans une rue recherchée du 6e arrondissement, cet appartement de 65,50 m² se trouve au 2e étage d'un bel immeuble ancien avec ascenseur Il se compose d'une entrée, d'un double séjour particulièrement lumineux grâce à son exposition plein sud, d'une cuisine, d'un WC indépendant, d'une chambre principale ( 2 chambres possible), d'une petite chambre d'appoint attenante au salon, d'une salle de bains. En annexes, une cave en sous-sol et un débarras d'environ 5 m² au dernier étage complètent ce bien. Atouts : belle luminosité, plan agréable, emplacement prisé, cachet de l'ancien. Un bien rare sur le secteur, idéal pour une résidence principale ou un pied-à-terre parisien. PLAN DE L'APPARTEMENT DANS LES PHOTOS Copropriété de 18 lots - dont 12 lots habitation. (Pas de procédure en cours). Charges annuelles : 3124 euros.
Les photos du bien
Les diagnostics
Bâtiment économe |
---|
![]() |
![]() |
![]() |
![]() |
![]() 293 |
![]() |
![]() |
Bâtiment énergivore |
en kWh.an/m².an |
Faible émission de GES* |
---|
![]() |
![]() |
![]() |
![]() |
![]() |
![]() 64 |
![]() |
Forte émission de GES* |
* Gaz à effet de serre en KgeqCO2/m².an |