En vente Appartement 2 pièces 52 m2
| Ville | Paris 5ème |
| Code postal | 75005 |
| Type de bien | Appartement |
| Surface | 52 m2 |
| Nombre de pièces | 2 pièces |
| Prix | 700 000,00 € |
| Informations sur l'annonceur | |
|---|---|
| Annonce de professionnel |
|
| Agence | MAREL IMMOBILIER Voir toutes les annonces |
| Adresse | 5 rue de Moscou |
| 75008 Paris | |
| Téléphone Fixe | 0145352958 |
Description
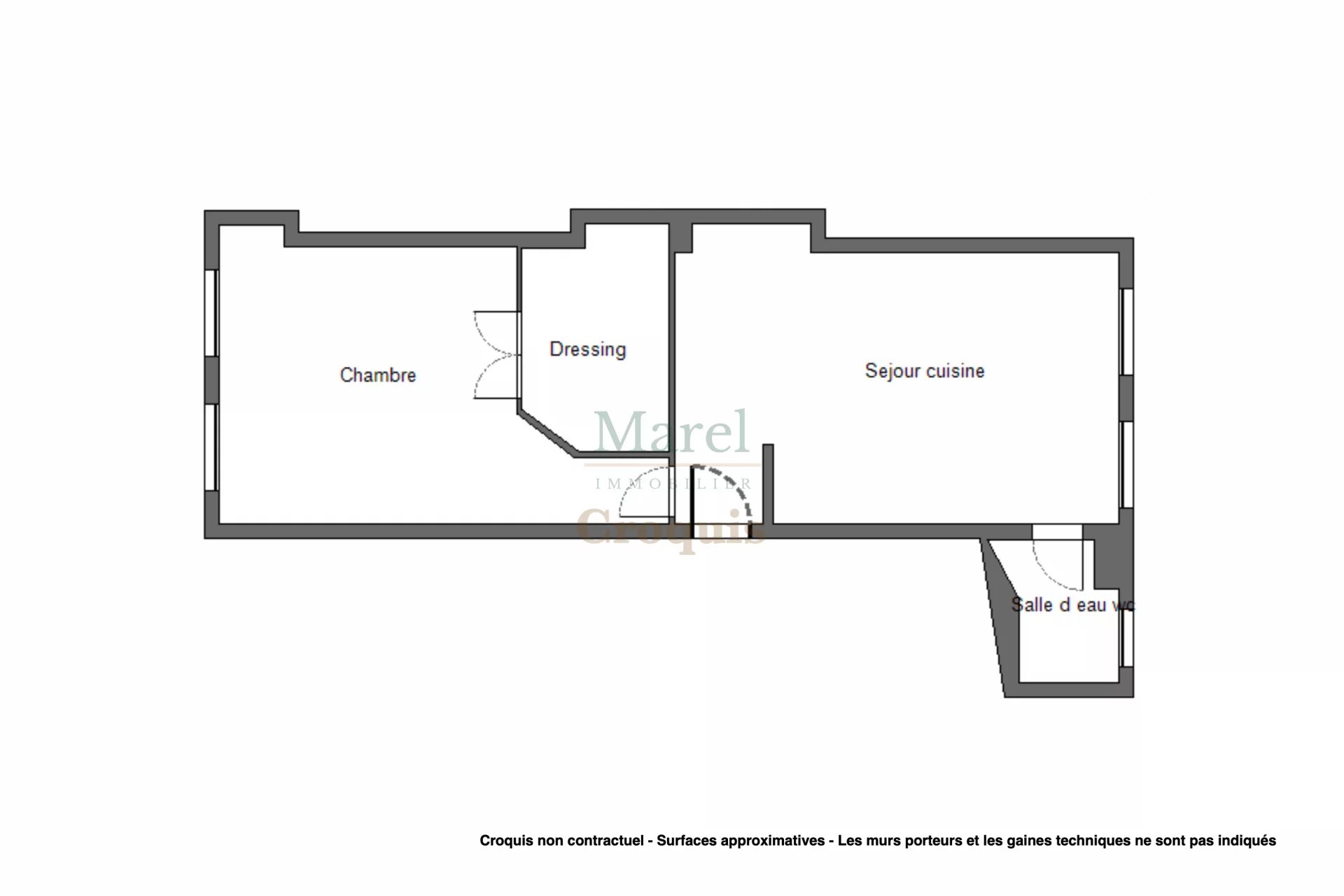
À 5 minutes à pied du RER B Luxembourg et du Jardin du Luxembourg, dans le quartier du Panthéon, rue Saint-Jacques. Situé au 4ᵉ étage avec ascenseur d’un bel immeuble ancien sur cour, cet appartement bénéficie de vues dégagées. Il se compose d’une pièce principale avec cuisine ouverte exposée ouest, d’une chambre avec grand dressing transformable en pièce d’eau et offrant une vue sur le Panthéon exposée est, ainsi que d’une salle de bains avec WC. Le chauffage et l’eau chaude sont individuels électriques. Sectorisation scolaire : Ecole maternelle Cujas, Ecole primaire Victor Cousin, Collège Lavoisier. Les informations sur les risques auxquels ce bien est exposé sont disponibles sur le site Géorisques www.georisques.gouv.fr
Les photos du bien
Les diagnostics
DPE
| Energie non communiquée |
|---|
GES
| Faible émission de GES* |
|---|
| |
| |
| |
| |
| |
| |
| 301 |
| Forte émission de GES* |
| * Gaz à effet de serre en KgeqCO2/m².an |