En vente Appartement 6 pièces

Ville Paris 16ème
Code postal 75016
Type de bien Appartement
Surface
Nombre de pièces 6 pièces
Prix 1 150 000,00 €
Informations sur l'annonceur
Annonce de professionnel
Nom
Adresse
92200

Description

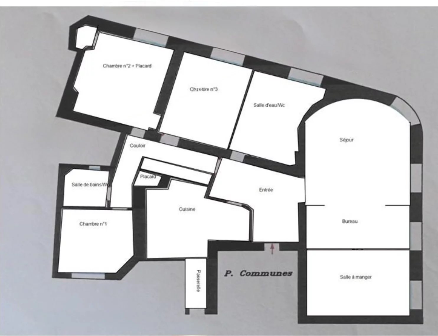
Paris 16 / Auteuil sud - Dans un bel immeuble haussmannien, nous vous proposons un appartement d'angle avec vue dégagée de 5/6 pièces, d'une surface de 127,46 m2 Carrez. Celui-ci comprend : une entrée, un séjour d'angle avec de grandes fenêtres, un bureau et une salle à manger (poss. 4è chambre), avec parquet point de hongrie, moulures et cheminées, une chambre parentale avec sa salle de bains, deux chambres, une seconde salle de bains avec fenêtre, deux wc, une cuisine dinatoire séparée. Appartement au 1er étage bénéficiant d'une belle hauteur sous plafond de 2,90 m et d'une vue dégagée. Plan fonctionnel et agréable. Une grande cave (11 m2) complète ce bien, local à vélos. Un vrai coup de coeur pour cet appartement offrant une belle triple réception, en bon état, bénéficiant d'une vue dégagée et d'une localisation recherchée, à proximité des commerces, des écoles et des transports (ligne 9, bus) 17 copropriétaires, aucune procédure en cours.

Les photos du bien

Les diagnostics


DPE
Energie non communiquée
GES
Faible émission de GES*
198
Forte émission de GES*
* Gaz à effet de serre en KgeqCO2/m².an

Contacter