En vente Appartement 3 pièces

Ville Juan-les-Pins
Code postal 06160
Type de bien Appartement
Surface
Nombre de pièces 3 pièces
Prix 1 599 000,00 €
Informations sur l'annonceur
Annonce de professionnel
Agence AAA Riviera
Voir toutes les annonces
Adresse 12, rue des Belges
06400 Cannes
Téléphone Fixe 0493008724

Description

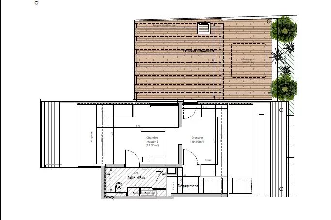
Penthouse dans un nouveau programme à Juan-Les-Pins: Située dans l’un des quartiers les plus recherchés, cette nouvelle résidence de standing, composée de seulement 8 appartements, allie design contemporain, confort absolu et prestations haut de gamme. Elle offre un cadre de vie exceptionnel sur la Côte d’Azur, avec un accès direct aux plages de sable fin. Le bien que nous vous proposons est un des 2 duplex toit terrasse avec une vue mer spectaculaire sur le Cap d’Antibes et les îles de Lérins. D’une superficie de 119m², ce magnifique appartement est composé d’un vaste séjour/cuisine de 61m², avec de larges baies vitrées, s'ouvrant sur une terrasse de 23m² avec vue mer imprenable. Une chambre en suite avec dressing complète ce niveau. WC invités. A l’étage supérieur, une deuxième chambre en suite avec dressing s'ouvre sur la deuxième grande terrasse de 35m² équipée d'une pergola bioclimatique et de son jacuzzi privé. Climatisation réversible dans toutes les pièces, placards sur mesure dans les chambres. Architecture élégante sublimée à la nuit tombée par un éclairage sur mesure, toiture en tuiles, garde-corps en verre et acier Ce bien est une alternative à la villa, idéal pour ceux qui veulent un bien de prestige avec jacuzzi, sans vis-à-vis, sécurisé, et sans l’entretien d’un terrain. Ce bien est vendu avec un parking en sous-sol , une place de stationnement pour moto et une cave. Borne de recharge électrique intégrée pour tous les stationnements. Nombre de lots principaux: 8 - Livraison prévue le 01/04/2027 - Frais de notaire réduits. Photos non contractuelles. Biens disponibles à la vente dans cette résidence -T3 en duplex avec garage, stationnement moto et cave compris: 1.499.000€ - T2 à partir de 369.000€, parking et cave en supplément - T3 à partir de 529.000€, parking et cave en sus N'hésitez pas à nous contacter pour de plus amples renseignements. Les informations sur les risques auxquels ce bien est exposé sont disponibles sur le site Géorisques : georisques.gouv.fr

Les photos du bien

Les diagnostics


DPE
Energie non communiquée
GES
GES non communiqué