En vente Appartement 3 pièces 52 m2

Ville La Ciotat
Code postal 13600
Type de bien Appartement
Surface 52 m2
Nombre de pièces 3 pièces
Prix 229 000,00 €
Informations sur l'annonceur
Annonce de professionnel
Agence Jean-Pierre ROUVE
Voir toutes les annonces
Adresse
13600 La Ciotat
Téléphone Fixe 33668612067

Description

Appartement T3 à vendre à LA CIOTAT Chez COMBAREL IMMOBILIER,

Véritable coup de c?ur pour toute notre équipe, pour cet appartement de plus de 52 m² qui se situe en plein c?ur du centre historique de La Ciotat, à deux pas de toutes les commodités.

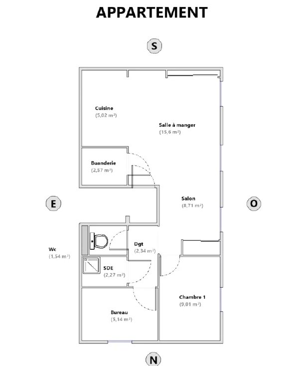
Ce dernier est composé d'un salon, d'une cuisine ouverte, d'une salle à manger, d'une chambre, d'un bureau, d'une salle d'eau, d'une buanderie, d'un WC et d'un dégagement.

L'appartement qui a un fort potentiel est agréable à vivre, bien agencé, convivial, fonctionnel, traversant et lumineux.

Il se trouve au 1er étage d'une petite copropriété de 4 lots à taille humaine et bien entretenue.

N'attendez pas pour venir découvrir cet appartement cocooning qui sera libre au 31 décembre 2025.

Visite virtuelle disponible sur notre site www.combarel-immobilier.com

Les photos du bien

Les diagnostics


DPE
Bâtiment économe
146
Bâtiment énergivore
en kWh.an/m².an
GES
Faible émission de GES*
4
Forte émission de GES*
* Gaz à effet de serre en KgeqCO2/m².an