En vente Appartement 4 pièces 130 m2

Ville Thonon-les-Bains
Code postal 74200
Type de bien Appartement
Surface 130 m2
Nombre de pièces 4 pièces
Prix 375 000,00 €
Informations sur l'annonceur
Annonce de professionnel
Agence LEMAN IMMO SASU
Voir toutes les annonces
Adresse
74500 PUBLIER
Portable 0684507382

Description

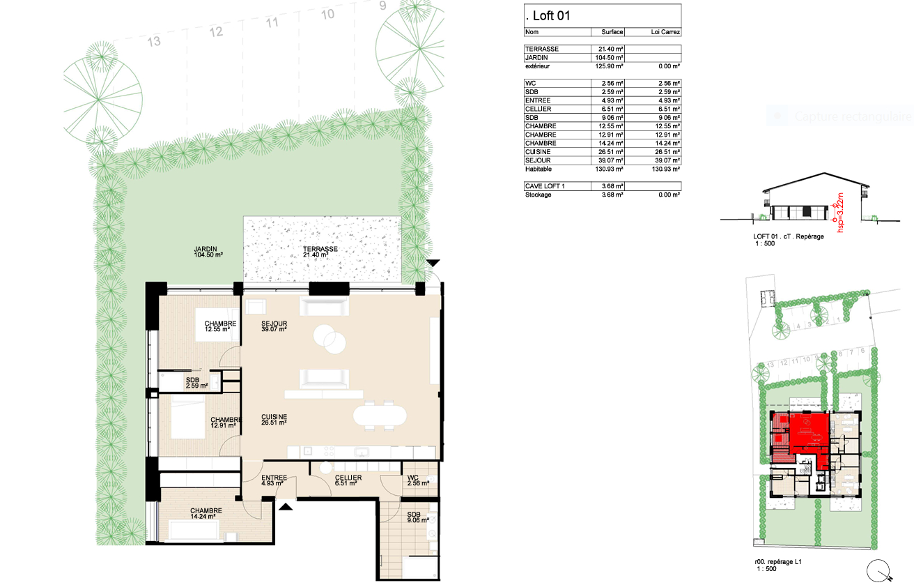
Au calme au fond 'une impasseDans une réhabilitation d'un ancien bâtiment en 8 logements, découvrez ce loft en plateau brut de 130 m² , à aménager selon vos envies.Possibilité de créer de 3 chambres, 2 salles de bains, 1 WC, un séjour, une cuisine, une cave, deux places de parking
et un grand jardin de 125 m².Ce plateau dispose de deux entrées indépendantes permettant la location d'un partie du bien.Gros oeuvre terminé et livrés avec : l'arrivées d'eau,
l'électricité, le télécom jusqu'au pied du lot, l'isolation thermique extérieur, les menuiseries posées avec volets roulants ).Un projet idéal pour créer un lieu de vie unique, dans un environnement calme et proche du Léman Express.Livraison en juin 2026 !Copropriété de 8 lots ().

Les photos du bien

Les diagnostics


DPE
Energie non communiquée
GES
GES non communiqué