En vente Maison 6 pièces 160 m2

Ville FONTAINE SIMON
Code postal 28240
Type de bien Maison
Surface 160 m2
Nombre de pièces 6 pièces
Prix 149 000,00 €
Informations sur l'annonceur
Annonce de professionnel
Agence 5 PIECES ET PLUS
Voir toutes les annonces
Adresse 3bis rue Louise Michel
92300 LEVALLOIS PERRET
Portable 0663556608

Description

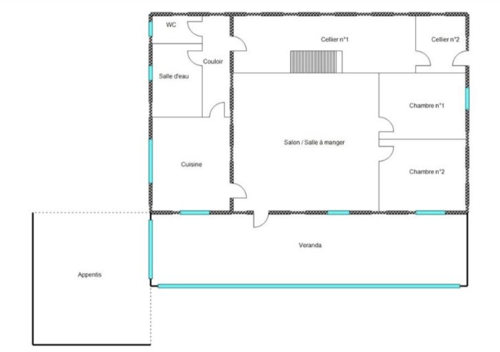
FONTAINE-SIMON (28240) – Au cœur du Parc naturel régional du Perche, Maison de campagne d'environ 160 m2, en lisière de forêt. - Au rez-de-chaussée, un salon-cheminée, une grande cuisine dinatoire, 2 CHAMBRES, une salle d'eau, des toilettes séparées. Belle VERANDA offrant un cadre de vie unique et une vue imprenable sur le jardin. - Au 1er étage, 2 CHAMBRES, des toilettes séparées, un grenier à aménager. Chauffage gaz de ville – Tout-à-l'égout (assainissement conforme) - TOITURE NEUVE (mars 2025) A RENOVER – BEAU POTENTIEL Jardin arboré de plus de 2 640 m2 au calme avec beaux arbres fruitiers (cerisier, noyer, poiriers, pommiers, …) DEPENDANCES, ATELIER - Carport 2 voitures VUE DEGAGEE sur jardin et campagne. Proche de toutes les commodités : commerces du village (boucherie, poste, épicerie, … Camping et activités de loisirs proches (téléski nautique et parc aquatique) Proche gare de La Loupe reliant Paris, à moins de 10 km, desservie par des TER depuis Paris Montparnasse, trajets d'environ 1h20 min pour Paris . Idéal pour rejoindre également Chartres, Dreux et l'agglomération eurélienne. Bretoncelles (~12 km), Courville-sur-Eure (~17 km), Nogent-le-Rotrou (~25 km) En voiture, environ 1h40 min de Paris A voir très vite ! Pour toute demande de renseignements et visites, contactez Caroline LOGEAIS - 5 PIECES ET PLUS, 1ère agence immobilière spécialisée dans les biens familiaux de minimum 3 CHAMBRES (Paris, Ile-de-France / Bordeaux, Bassin d'Arcachon) www.5piecesetplus.com (réf. 9201111893) Prix TTC et Honoraires à charge vendeur TTC . Prix TTC et Honoraires à charge vendeur TTC Les informations sur les risques auxquels ce bien est exposé sont disponibles sur le site georisques.gouv.fr

Les photos du bien

Les diagnostics


DPE
Bâtiment économe
312
Bâtiment énergivore
en kWh.an/m².an
GES
Faible émission de GES*
68
Forte émission de GES*
* Gaz à effet de serre en KgeqCO2/m².an