En vente Appartement 3 pièces 69 m2
| Ville | PARIS 19EME ARRONDISSEMENT |
| Code postal | 75019 |
| Type de bien | Appartement |
| Surface | 69 m2 |
| Nombre de pièces | 3 pièces |
| Prix | 480 000,00 € |
| Informations sur l'annonceur | |
|---|---|
| Annonce de professionnel |
|
| Agence | 5 PIECES ET PLUS Voir toutes les annonces |
| Adresse | 3bis rue Louise Michel |
| 92300 LEVALLOIS PERRET | |
| Portable | 0663556608 |
Description
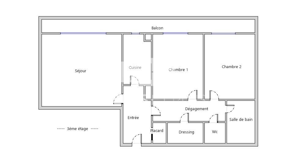
EXCLUSIVITE - PARIS (75019), Quartier Flandre-Aubervilliers / Villa Curial A 5 min du métro Riquet (ligne 7), à proximité des crèches, écoles, commerces et espaces verts. Au sein d'une résidence sécurisée, bel appartement de 69,33 m2 Carrez au 3ème étage/10 avec ascenseur offrant une vue dégagée sur les jardins de la résidence. Il se compose d'une entrée, d'une grande pièce de séjour avec un balcon (exposition sud/ouest), 1 cuisine séparée aménagée et équipée, 2 CHAMBRES, nombreux rangements, 1salle d'eau, 1 grand dressing, toilettes séparés. 1 cave (niveau -1) accessible et 1 box au niveau -2 directement accessibles par l'ascenseur complètent le bien. CALME et LUMINEUX, vue dégagée, nombreux rangements. Rafraîchissement à prévoir. Chauffage collectif au gaz, double vitrage, DPE D, gardien. Au cur du quartier Flandre, la résidence est idéalement située à proximité immédiate de toutes les commodités : écoles mitoyennes à la résidence, commerces, loisirs avec le Centre culturel Le 104 à 3 minutes à pied ou Le Bassin de la Villette à quelques minutes. Transports : Ligne 7 : métro Riquet à 400m, Crimée à 500m Bus Mathis à 200m, Curial - Archereau à 200m et Riquet à 300m Prix TTC et Honoraires à charge vendeur TTC Agent commercial Les informations sur les risques auxquels ce bien est exposé sont disponibles sur le site georisques.gouv.fr
Les photos du bien
Les diagnostics
| Bâtiment économe |
|---|
| |
| |
| |
| 222 |
| |
| |
| |
| Bâtiment énergivore |
| en kWh.an/m².an |
| Faible émission de GES* |
|---|
| |
| |
| |
| 48 |
| |
| |
| |
| Forte émission de GES* |
| * Gaz à effet de serre en KgeqCO2/m².an |