En vente Appartement 3 pièces 58 m2
| Ville | THONON LES BAINS |
| Code postal | 74200 |
| Type de bien | Appartement |
| Surface | 58 m2 |
| Nombre de pièces | 3 pièces |
| Prix | 248 000,00 € |
| Informations sur l'annonceur | |
|---|---|
| Annonce de professionnel |
|
| Agence | VALORITY ADMINISTRATION DE BIENS Voir toutes les annonces |
| Adresse | 94, Quai Charles de Gaulle |
| 69006 Lyon | |
| Téléphone Fixe | 0970808085 |
Description
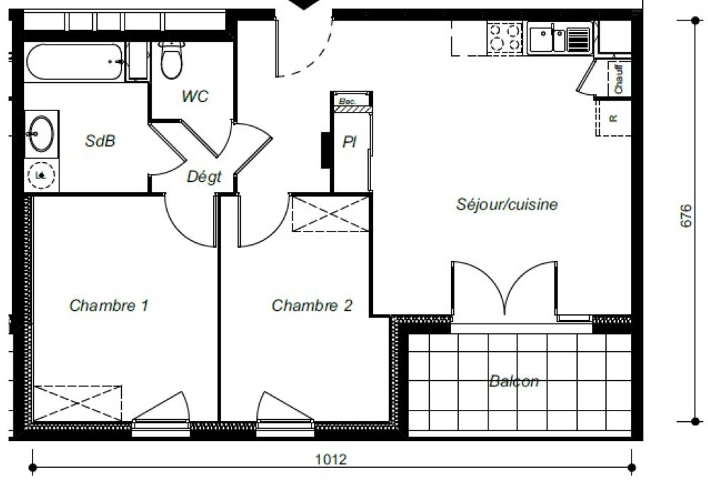
THONON LES BAINS - Avenue de la Libération. Proche du centre ville et de toutes commodités, cet appartement T3 bien distribué d'une superficie d'environ 58 m² se situe au 4ème étage d'une résidence de 2019. Il se compose : - d'une entrée - d'un séjour avec cuisine ouverte aménagée d'environ 27 m² - d'un balcon de 6 m² exposé Sud-Est - de deux chambres avec rangements de 11 et 10 m² - d'une salle de bains - d'n WC indépendant Un garage en sous-sol complète ce bien. Chauffage individuel gaz. Charges annuelles : 1 313 euros. Ses atouts : Emplacement, proche toutes commodités, commerces et gare, résidence récente, balcon, garage. Copropriété de 192 lots - dont 76 lots habitation. (Pas de procédure en cours). Charges annuelles : 1313 euros.
Les photos du bien
Les diagnostics
| Bâtiment économe |
|---|
| 53 |
| |
| |
| |
| |
| |
| |
| Bâtiment énergivore |
| en kWh.an/m².an |
| Faible émission de GES* |
|---|
| |
| |
| 12 |
| |
| |
| |
| |
| Forte émission de GES* |
| * Gaz à effet de serre en KgeqCO2/m².an |