En vente Maison 9 pièces 203 m2
| Ville | GRANDE RIVIERE CHATEAU |
| Code postal | 39150 |
| Type de bien | Maison |
| Surface | 203 m2 |
| Nombre de pièces | 9 pièces |
| Prix | 325 000,00 € |
| Informations sur l'annonceur | |
|---|---|
| Annonce de professionnel |
|
| Agence | Stéphane Plaza Immobilier - Lons-le-Saunier Voir toutes les annonces |
| Adresse | 12, rue de Ronde |
| 39000 Lons le Saunier | |
| Téléphone Fixe | 0384851593 |
Description
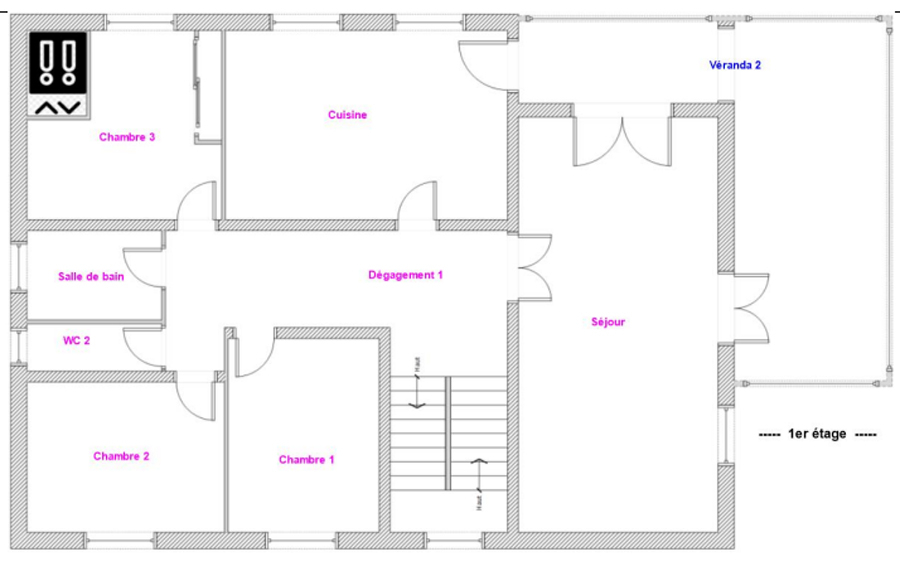
Maison remise en vente suite à un refu de prèt NOUVEAUTE ET EXCLUSIVITE STEPHANE PLAZA IMMOBILIER pour cette maison individuelle située à GRANDE RIVIERE, avec vue sur le lac, au coeur du Parc Naturel du Haut Jura, et au pied des pistes et sentiers de randonnées. Cette maison familiale de 203m² habitables avec ascenseur, 7 chambres et un bureau, bénéficie d'un emplacement idéal. Elle est estimée au juste prix par Fabien Morel 06 46 16 51 77 La maison se compose d'une entrée, d'un bureau, d'un double garage avec ascenseur, d'une chaufferie et de deux caves. A l'étage, un salon-salle-à-manger très lumineux donnant directement sur la véranda, et équipé d'une cheminée. Une cuisine indépendante et spacieuse avec accès à la véranda, trois chambres, une salle de bain et toilettes séparées. Au deuxième étage, un palier distribue quatre chambres, une salle d'eau et des toilettes. Côté technique, un rafraichissement est à prévoir, le chauffage est assuré par une cheminée et une chaudière fioul. Les informations sur l'états des risques et pollution auxquels ce bien est exposé sont disponibles sur le site Géorisques : www.georisques.gouv.fr Mandat 200550 Honoraires charge vendeur 4,5% C'est Fabien Morel agent commercial Stéphane Plaza Immobilier RSAC 418 281 770 Lons le Saunier qui vous accompagnera sur cette transaction. Commerçant indépendant membre du réseau Stéphane Plaza Immobilier. Fabien MOREL (EI) Agent Commercial - Numéro RSAC : 418 281 770 - Lons-Le-Saunier.
Les photos du bien
Les diagnostics
| Bâtiment économe |
|---|
| |
| |
| |
| |
| |
| |
| 472 |
| Bâtiment énergivore |
| en kWh.an/m².an |
| Faible émission de GES* |
|---|
| |
| |
| |
| |
| 54 |
| |
| |
| Forte émission de GES* |
| * Gaz à effet de serre en KgeqCO2/m².an |