En vente Appartement 3 pièces
| Ville | Nice |
| Code postal | 06200 |
| Type de bien | Appartement |
| Surface | |
| Nombre de pièces | 3 pièces |
| Prix | 310 000,00 € |
| Informations sur l'annonceur | |
|---|---|
| Annonce de professionnel |
|
| Agence | AAA Riviera Voir toutes les annonces |
| Adresse | 12, rue des Belges |
| 06400 Cannes | |
| Téléphone Fixe | 0493008724 |
Description
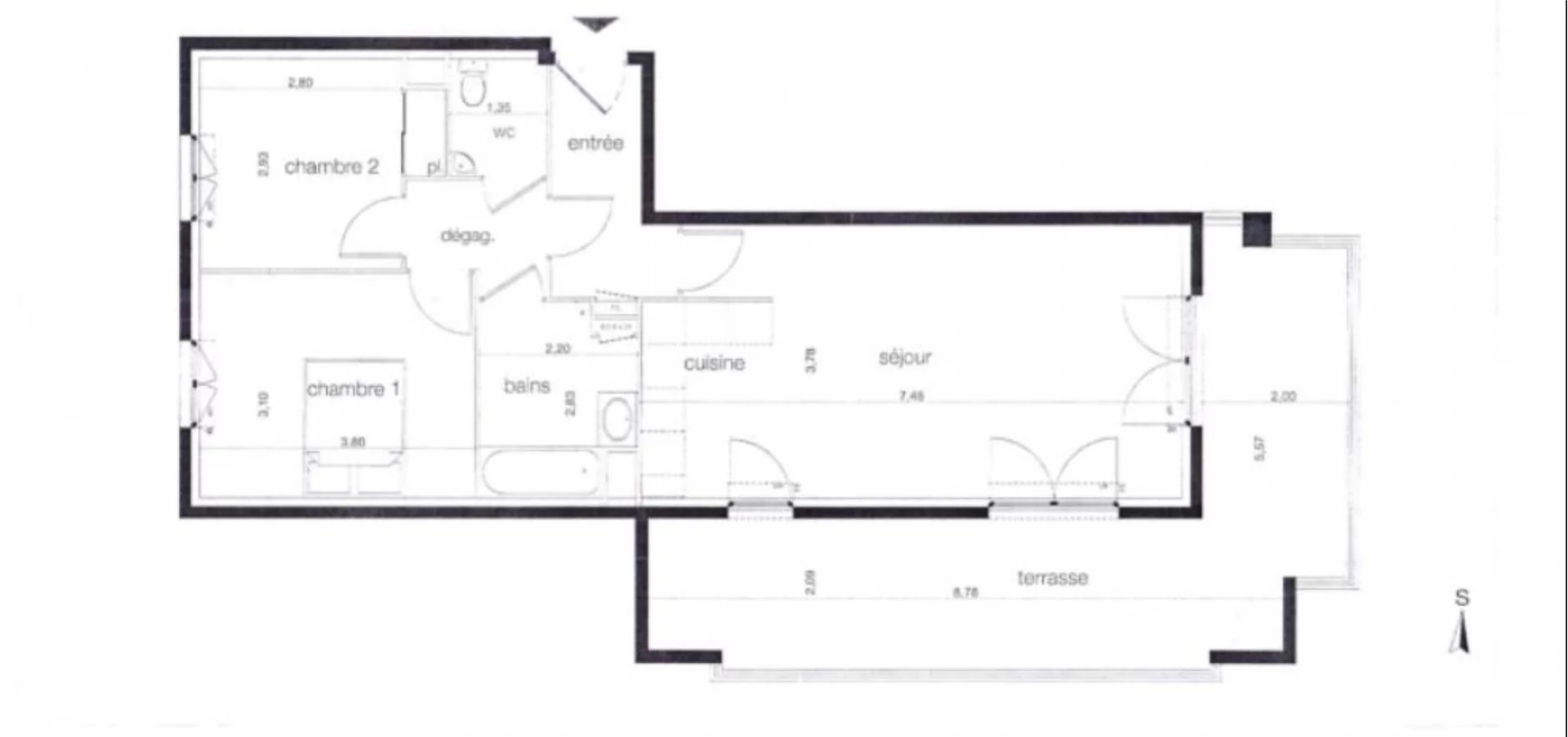
EXCLUSIVITÉ - NICE - Situé dans le secteur Spagnol nous vous proposons à la vente cet agréable appartement d'angle et traversant d'une surface de 64 m². Situé au 2ème étage sur 5 avec ascenseur, dans une résidence récente (2013), l'appartement est composé comme suit : entrée, séjour-cuisine ouvert sur une grande terrasse d'angle de 30 m², 2 chambres, salle de bain et WC indépendant. Un garage en supplément pour 30 000€. L'appartement est au calme tout en restant à proximité immédiate des grands axes, de l'autoroute et de l'aéroport. Les commerces se trouvent à quelques minutes à pieds ainsi que les transports en communs. Quote-part des charges: 234€ /mois inclus chauffage et eau chaude. Nombre de lots principaux: 24 Pas de procédure en cours à notre connaissance. Les informations sur les risques auxquels ce bien est exposé sont disponibles sur le site Géorisques: georisques.gouv.fr
Les photos du bien
Les diagnostics
| Bâtiment économe |
|---|
| |
| |
| 179 |
| |
| |
| |
| |
| Bâtiment énergivore |
| en kWh.an/m².an |
| Faible émission de GES* |
|---|
| |
| |
| |
| 36 |
| |
| |
| |
| Forte émission de GES* |
| * Gaz à effet de serre en KgeqCO2/m².an |