En vente Appartement 1 pièce 40 m2
| Ville | Paris 15ème |
| Code postal | 75015 |
| Type de bien | Appartement |
| Surface | 40 m2 |
| Nombre de pièces | 1 pièce |
| Prix | 350 000,00 € |
| Informations sur l'annonceur | |
|---|---|
| Annonce de professionnel |
|
| Nom | |
| Adresse | |
| 92200 |
Description
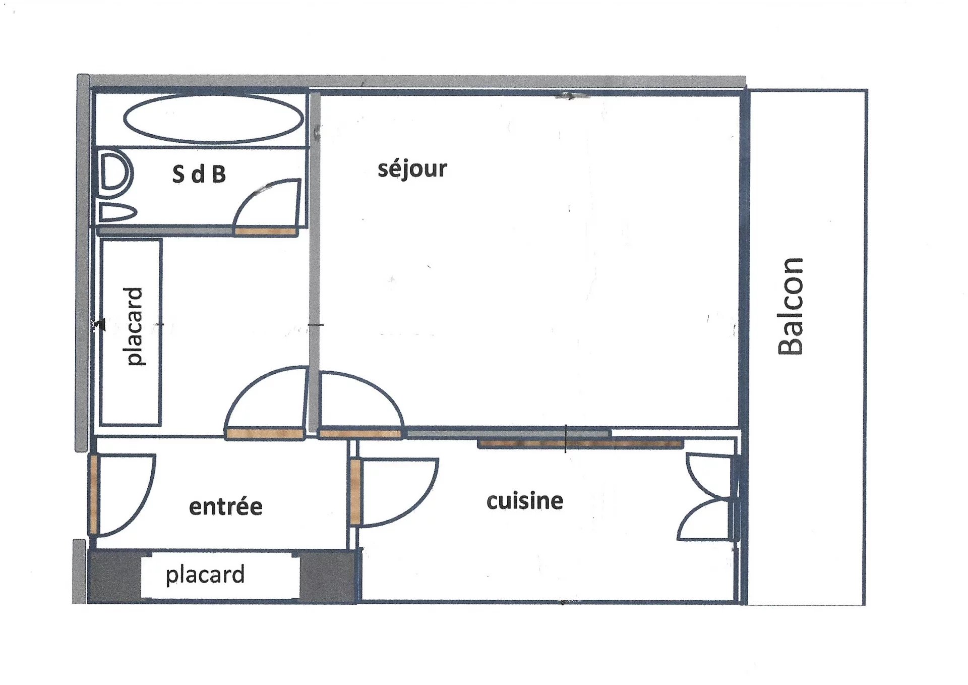
Paris 15 / Square Violet - A mi-chemin entre le centre Beaugrenelle et la rue du Commerce, au 7ème étage avec ascenseur d'un immeuble récent de bon standing, nous vous proposons un studio de 33,6 m2 Carrez, sans vis à vis, lumineux, bien exposé, comprenant : une entrée, une pièce de vie ouvrant sur un agréable balcon de 6,15 m2, au calme sur jardin, une salle de bains, une cuisine, des placards. Très bon plan avec diverses possibilités d'agencement. Une cave complète ce bien. Copropriété de 88 lots bien entretenue et sécurisée. Gardien. Localisation recherchée, à proximité immédiate du métro (lignes 8 et 10) , de bus (42, 70, 88), des commerces.
Les photos du bien
Les diagnostics
DPE
| Bâtiment économe |
|---|
| |
| |
| 140 |
| |
| |
| |
| |
| Bâtiment énergivore |
| en kWh.an/m².an |
GES
| Faible émission de GES* |
|---|
| |
| |
| |
| |
| |
| |
| 131 |
| Forte émission de GES* |
| * Gaz à effet de serre en KgeqCO2/m².an |