En vente Appartement 3 pièces 70 m2
| Ville | LYON |
| Code postal | 69004 |
| Type de bien | Appartement |
| Surface | 70 m2 |
| Nombre de pièces | 3 pièces |
| Prix | 399 900,00 € |
| Informations sur l'annonceur | |
|---|---|
| Annonce de professionnel |
|
| Agence | Instant immobilier Lyon - Instant immobilier Voir toutes les annonces |
| Adresse | 18-20 rue tronchet |
| 69006 Lyon | |
| Téléphone Fixe | 0610525295 |
| Portable | 0626197556 |
Description
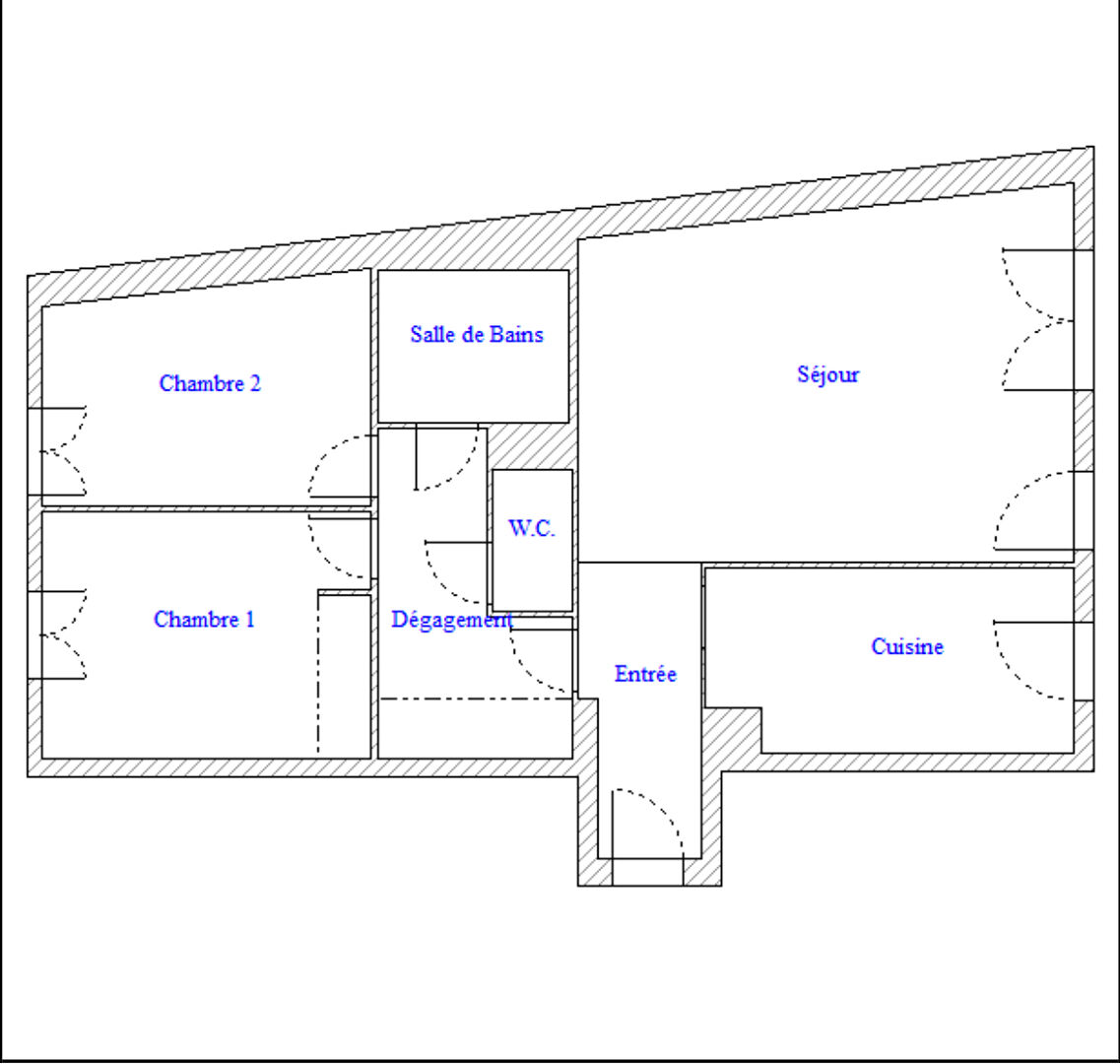
Exclusivité - Rez-de-jardin au coeur de la Croix Rousse - Découvrez au coeur de la croix rousse, proche de la Place Commandant Arnaud , de la grande rue et de l'hôpital de la Croix Rousse, cet appartement traversant aux normes PMR en rez-de-jardin d'environ 66,60m2 carrez avec deux jardins d'une surface totale de 54m2. Il se compose d'une entrée, d'un séjour et d'une cuisine semi ouverte avec accès sur une terrasse et un jardin exposé SUD. Coté nuit, un dégagement dessert deux chambres avec jardin, salle de bains et wc séparés. Chauffage gaz individuel. Cet appartement bénéficie de tous les avantages d'un immeuble récent. Vous aurez la possibilité de profiter de véritable extérieurs (2 jardins pour une surface totale de 50m2 environ). Date établissement Diagnostic Energétique 21/07/2017 Consommation énergie primaire C Valeur consommation énergie primaire 150kWh/m2 par an Gaz Effet de Serre C Valeur Gaz Effet de serre 29Kg CO2/m2/an Montant minimum estimé des dépenses annuelles d'énergie pour un usage standard 820 euros Montant maximum estimé des dépenses annuelles d'énergie pour un usage standard 1160 euros Honoraires d'agence à la charge du vendeur. Pour plus d'informations ou prendre rendez-vous contactez Marvin MIRO au 06.10.52.52.95 Vivons ensemble votre Instant Immobilier - Estimation sous 48h. Copropriété de 132 lots - dont 60 lots habitation. Charges annuelles : 1440 euros.