En vente Immeuble 4 pièces 96 m2
| Ville | ROANNE |
| Code postal | 42300 |
| Type de bien | Immeuble |
| Surface | 96 m2 |
| Nombre de pièces | 4 pièces |
| Prix | 96 000,00 € |
| Informations sur l'annonceur | |
|---|---|
| Annonce de professionnel |
|
| Agence | IMMO FACTORY Voir toutes les annonces |
| Adresse | |
| 42300 ROANNE | |
| Téléphone Fixe | 0970669476 |
| Portable | 0676955124 |
Description
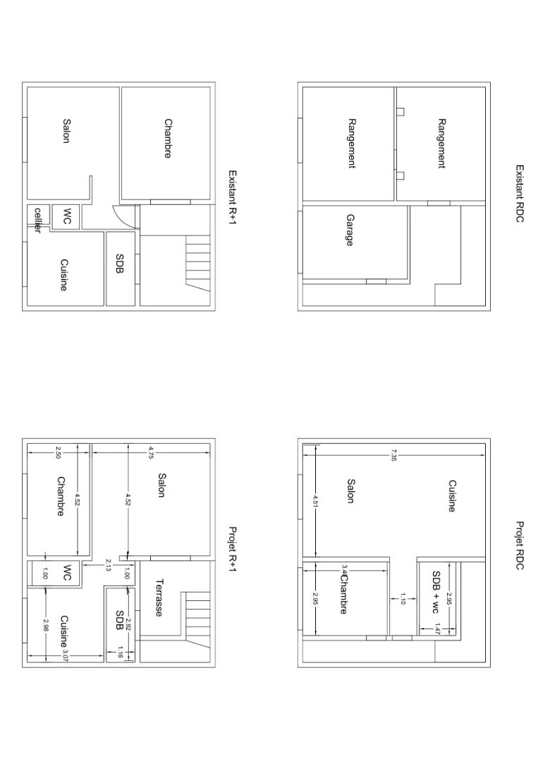
Région Auvergne Rhône-Alpes - Département Loire (42) - Votre agence immobilière IMMO FACTORY à Roanne vous propose à la vente, secteur Mulsant, Cet immeuble d'une superficie potentielle de 96 m² habitables avec cour intérieure actuellement composé comme suit : - Au rez-de-chaussée : deux pièces à rénover de 33 m² et un garage aménageable de 12 m², soit un total de 45 m² pour un futur appartement (exemple plan ci-joint). - A l'étage : un appartement de type 2 à rafraîchir d'environ 51 m² habitables comprenant : palier, cuisine, cellier, salon, W.C., une chambre et une salle de bains. JOLI POTENTIEL D'INVESTISSEMENT LOCATIF !
Les photos du bien
Les diagnostics
DPE
| Bâtiment économe |
|---|
| |
| |
| |
| |
| 289 |
| |
| |
| Bâtiment énergivore |
| en kWh.an/m².an |
GES
| Faible émission de GES* |
|---|
| |
| |
| |
| |
| 63 |
| |
| |
| Forte émission de GES* |
| * Gaz à effet de serre en KgeqCO2/m².an |