En vente Appartement 3 pièces 80 m2
| Ville | Cannes-la-Bocca |
| Code postal | 06150 |
| Type de bien | Appartement |
| Surface | 80 m2 |
| Nombre de pièces | 3 pièces |
| Prix | 499 900,00 € |
| Informations sur l'annonceur | |
|---|---|
| Annonce de professionnel |
|
| Agence | CCR Immobilier Voir toutes les annonces |
| Adresse | 107 Avenue Francis Tonner |
| 06150 Cannes | |
| Téléphone Fixe | 0987022632 |
Description
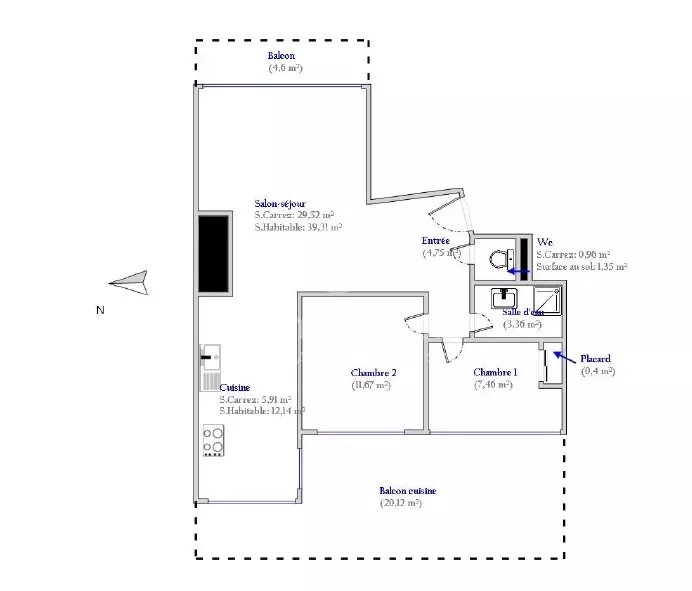
Co-Exclusivité - Résidence La Licorne - Située en plein coeur de Cannes-La-Bocca, sur un secteur plat et à deux pas de toutes les commodités, transports et plages de sable fin! Venez découvrir ce bel appartement 3 pièces de 80m² habitable (64,03m² Carrez) , au dernier étage et sa vue imprenable sur la mer et les Iles de Lérins! L'appartement se compose d'une entrée, un spacieux salon/séjour ouvert sur le balcon vue mer, une cuisine équipée ouverte sur une seconde terrasse, deux chambres climatisées, une salle d'eau, un WC séparé. Au sous-sol un stationnement privatif avec cave complète cette offre! Charges: 265€/mois comprenant l'eau chaude, l'eau froide, le chauffage, l'entretien des espaces verts, le gardien, la vidéo-surveillance! À visiter sans tarder!