En vente Appartement 3 pièces 57 m2
| Ville | SAINT GERMAIN EN LAYE |
| Code postal | 78100 |
| Type de bien | Appartement |
| Surface | 57 m2 |
| Nombre de pièces | 3 pièces |
| Prix | 415 000,00 € |
| Informations sur l'annonceur | |
|---|---|
| Annonce de professionnel |
|
| Agence | Agence Vielmon Immobilier Voir toutes les annonces |
| Adresse | 22, Rue Du Vieil-abreuvoir |
| 78100 St Germain En Laye | |
| Téléphone Fixe | 0130612323 |
Description
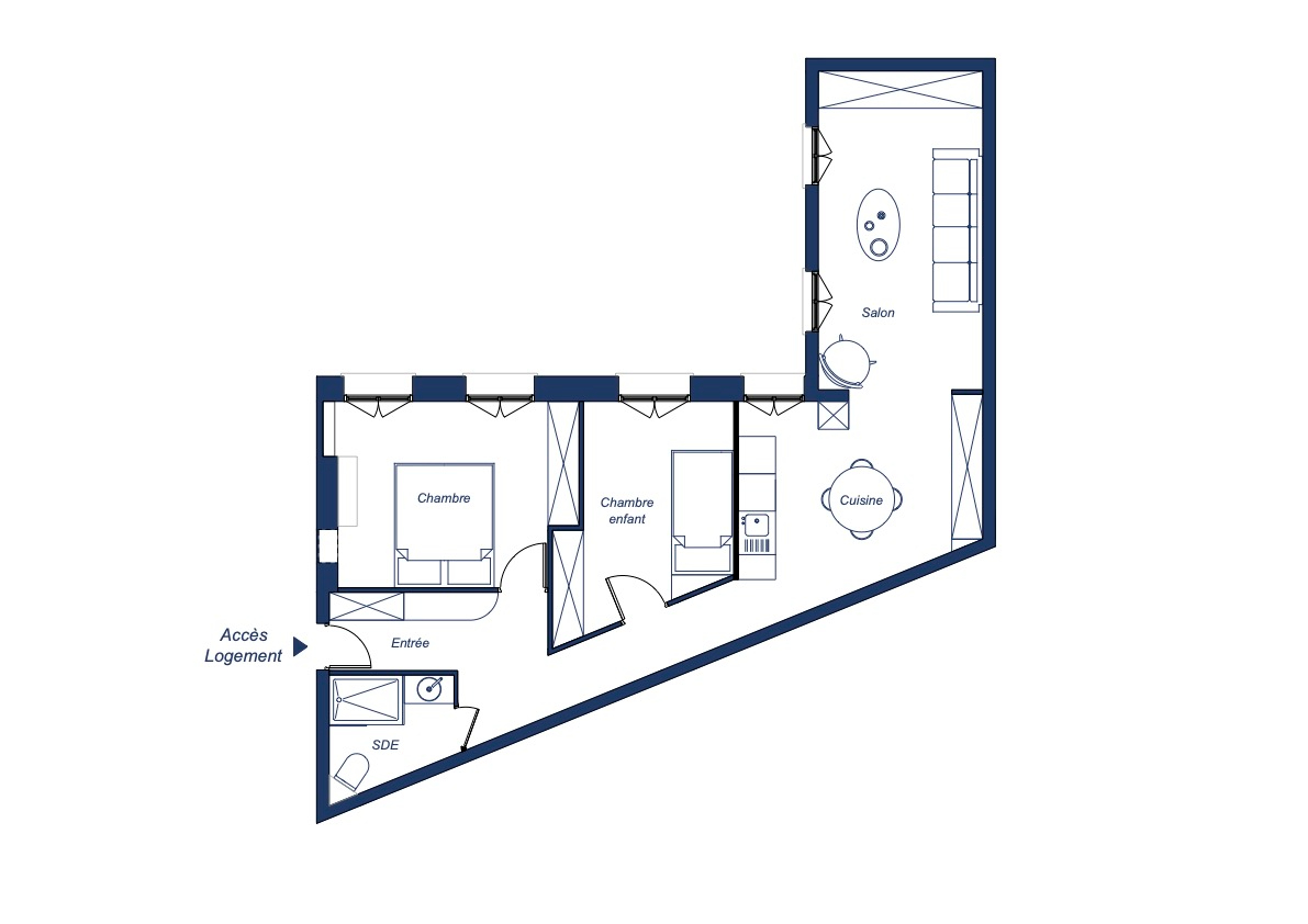
Découvrez ce magnifique appartement entièrement rénové, idéalement situé en plein coeur de Saint-Germain-en-Laye, dans un quartier recherché alliant dynamisme et cadre verdoyant, à deux pas du centre-ville et du RER A. D'une superficie de 57,52 m², ce bien calme et lumineux se trouve au premier étage d'un immeuble de trois niveaux. Il bénéficie d'une entrée indépendante et d'une agréable vue sur cour. L'appartement se compose de trois pièces, dont deux chambres, d'une cuisine ouverte créant un espace de vie convivial, ainsi que d'une salle d'eau et de WC séparés. Vous apprécierez la proximité immédiate de nombreux commerces et services : restaurants, supermarchés, boulangeries, établissements de santé et toutes les commodités du quotidien. Un cadre de vie idéal, alliant confort, praticité et qualité de vie. Pour toute information complémentaire, contactez l'agence Vielmon Immobilier. (3.75 % honoraires TTC à la charge de l'acquéreur.) Copropriété de 18 lots (Pas de procédure en cours). Charges annuelles : 1800 euros.
Les photos du bien
Les diagnostics
| Bâtiment économe |
|---|
| |
| |
| |
| 183 |
| |
| |
| |
| Bâtiment énergivore |
| en kWh.an/m².an |
| Faible émission de GES* |
|---|
| |
| |
| |
| 37 |
| |
| |
| |
| Forte émission de GES* |
| * Gaz à effet de serre en KgeqCO2/m².an |