En vente Maison 6 pièces 140 m2
| Ville | PLEYBEN |
| Code postal | 29190 |
| Type de bien | Maison |
| Surface | 140 m2 |
| Nombre de pièces | 6 pièces |
| Prix | 140 140,00 € |
| Informations sur l'annonceur | |
|---|---|
| Annonce de professionnel |
|
| Agence | ALV Immobilier Voir toutes les annonces |
| Adresse | 50 Avenue du Rouillen |
| 29500 ERGUE-GABERIC | |
| Téléphone Fixe | 0298902410 |
Description
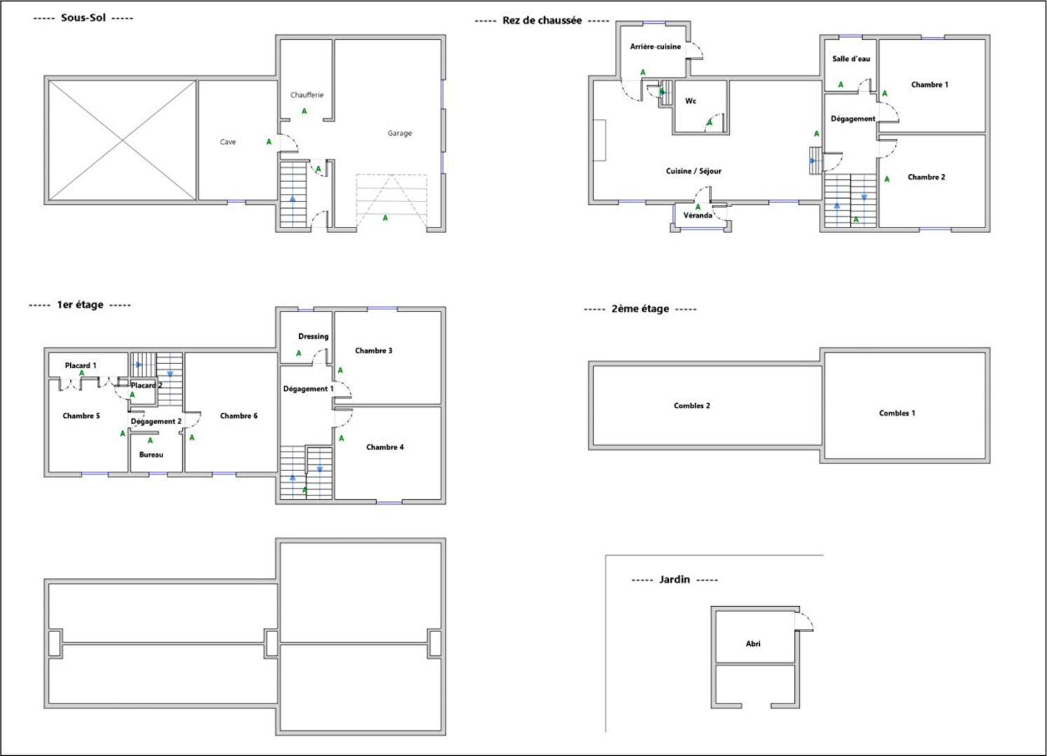
Spacieuse maison familiale avec sous-sol complet, six chambres, bureau et jardin avec abri. La maison, élevée sur sous-sol, offre au niveau inférieur un garage accessible depuis l'extérieur, un espace cave et une chaufferie. Au rez-de-chaussée, un sas d'entrée vitré ouvre sur une cuisine aménagée et équipée avec séjour. On y trouve également une arrière-cuisine, un dégagement desservant une salle d'eau, un WC et deux chambres, ainsi que l'accès à l'escalier menant au sous-sol et à l'étage. A l'étage, deux escaliers indépendants desservent chacun une partie distincte. La première partie comprend un dégagement, deux chambres, un bureau et des placards de rangement, dont une chambre avec baignoire et WC. La seconde partie comprend un dégagement, deux chambres et un dressing. La maison bénéficie enfin d'un jardin attenant ainsi que d'un abri extérieur. Dossier technique sur notre site. Le professionnel vous conseille, garantit et sécurise votre projet immobilier. Contact : 02.98.26.71.47 (7.80 % honoraires TTC à la charge de l'acquéreur.)
Les photos du bien
Les diagnostics
| Bâtiment économe |
|---|
| |
| |
| |
| |
| |
| 357 |
| |
| Bâtiment énergivore |
| en kWh.an/m².an |
| Faible émission de GES* |
|---|
| |
| |
| 12 |
| |
| |
| |
| |
| Forte émission de GES* |
| * Gaz à effet de serre en KgeqCO2/m².an |