En vente Maison 147 m2

Ville Cannes
Code postal 06400
Type de bien Maison
Surface 147 m2
Nombre de pièces
Prix 1 060 000,00 €
Informations sur l'annonceur
Annonce de professionnel
Agence Agence Mayent
Voir toutes les annonces
Adresse
Téléphone Fixe 0493942154

Description

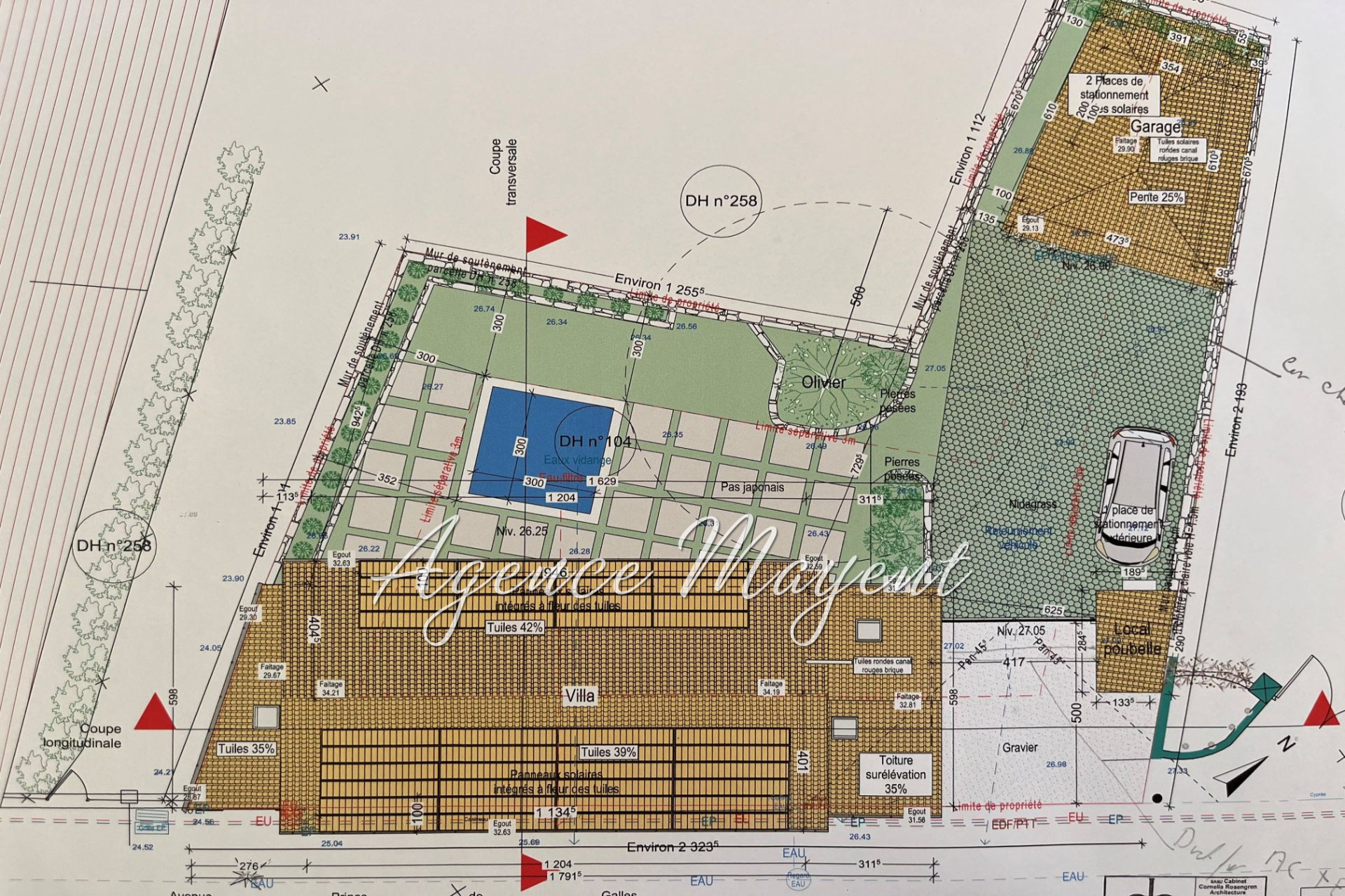
Maison de ville située dans le quartier Montrose, quartier calme et résidentiel à proximité immédiate de toutes les commodités, des écoles et du centre de Cannes.
Vendue avec un permis de construire accepté, cette maison en pierre avec beaucoup de charme nécessite une rénovation complète.
Le projet comprend, au rez-de-chaussée, un bel espace de vie d'environ 65 m² comprenant un salon, une grande cuisine familiale avec salle à manger intégrée.
A l'étage, vous y trouverez trois chambres avec leurs salles de bains.
Le jardin sans aucun vis-à-vis offrira un très bel environnement paysagé avec un bassin de 3m x 3m pour se rafraichir, un grand garage pour deux voitures et des places de parking extérieures.

Les photos du bien

Les diagnostics


DPE
Energie non communiquée
GES
GES non communiqué