En vente Appartement 3 pièces 67 m2
| Ville | LA GARENNE COLOMBES |
| Code postal | 92250 |
| Type de bien | Appartement |
| Surface | 67 m2 |
| Nombre de pièces | 3 pièces |
| Prix | 505 000,00 € |
| Informations sur l'annonceur | |
|---|---|
| Annonce de professionnel |
|
| Agence | BRACKE IMMOBILIER LA GARENNE Voir toutes les annonces |
| Adresse | 52 bis boulevard de la République |
| 92250 La Garenne Colombes | |
| Téléphone Fixe | 0142429827 |
Description
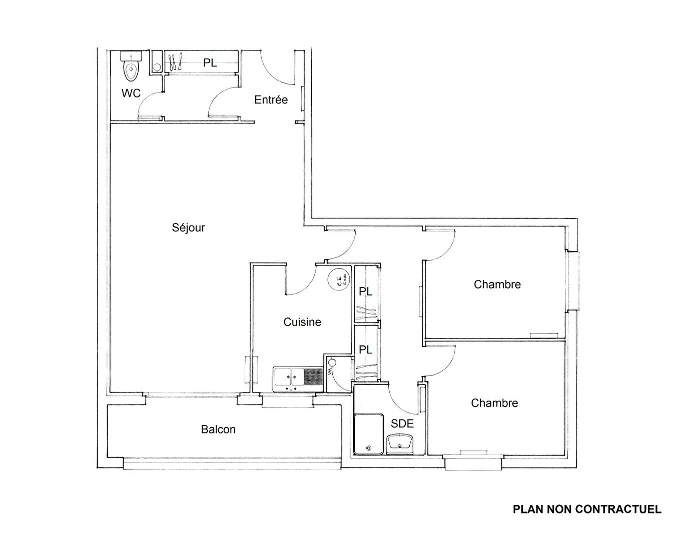
LA GARENNE CENTRE 3 PIÈCES 67,10 m² + BALCON 7 m² + BOX + CAVE Idéalement situé en plein coeur de La Garenne-Colombes, dans une résidence récente de deux étages parfaitement entretenue, cet agréable 3 pièces de 67,10 m² offre un plan optimisé sans perte d'espace. Il se compose de : - une entrée avec placard/dressing, - un séjour spacieux de 26,55 m² bénéficiant d'une grande baie vitrée coulissante ouvrant sur un beau balcon de 7 m², - une cuisine aménagée (ouverture possible sur le séjour pour une configuration cuisine US), - un espace nuit distinct avec 2 chambres, un grand linéaire de rangement et une salle d'eau moderne, - un wc indépendant. Un BOX extérieur de belles dimensions ainsi qu'une CAVE complètent ce bien. Chauffage et eau chaude individuels électriques. Copropriété agréable et soignée, parties communes rénovées en 2022. Les atouts : - Plan fonctionnel et sans perte d'espace - Lumineux et calme - Résidence bien entretenue - Proximité immédiate à pied de nombreuses commodités Localisation idéale : - A 3 min des commerces du Rond-Point du Souvenir Français et de la rue Voltaire, - École sectorisée Sagot Voltaire, - Transports : bus 163 (Neuilly, porte de Champerret) à 3 min, gare SNCF La Garenne-Colombes (ligne Saint-Lazare) à 10 min, et tram T2 Les Fauvelles (La Défense) à 7 min. PLAN OPTIMUM - COUP DE COEUR ASSURÉ Copropriété de 39 lots - dont 11 lots habitation. (Pas de procédure en cours). Charges annuelles : 2438 euros.
Les photos du bien
Les diagnostics
| Bâtiment économe |
|---|
| |
| |
| |
| 212 |
| |
| |
| |
| Bâtiment énergivore |
| en kWh.an/m².an |
| Faible émission de GES* |
|---|
| 6 |
| |
| |
| |
| |
| |
| |
| Forte émission de GES* |
| * Gaz à effet de serre en KgeqCO2/m².an |