Description
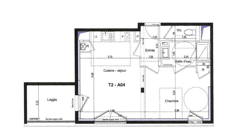
L'agence BIZEUL IMMOBILIER vous propose à la location cet appartement type 2 situé au rez-de-chaussée d'une résidence neuve aux belles prestations. Ce logement comprend une entrée, une pièce de vie avec cuisine ouverte aménagée et équipée (meubles hauts et bas, plaques de cuisson, hotte, évier et réfrigérateur), un séjour avec accès à la loggia exposée OUEST, une chambre avec salle d'eau attenante et WC séparé. Un garage complète le bien. LOGEMENT SOUS DISPOSITIF PINEL Référence : MONTANA-A04 Disponible : mi-décembre 2025 Loyer : 600 euros + 30 euros de charges (entretien des parties communes, taxe d'ordures ménagères et entretien de la chaudière) = 630 euros VISITES UNIQUEMENT SUR DOSSIER DE CANDIDATURE COMPLET location @ bizeulimmobilier . com