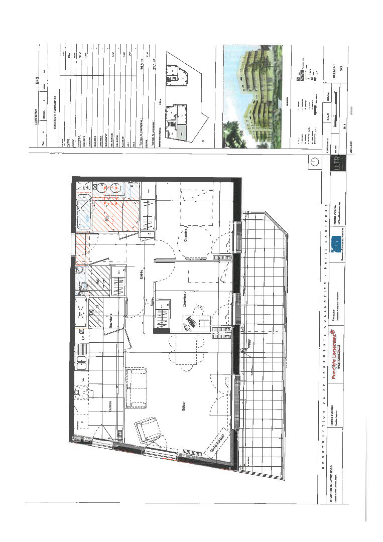
En location Appartement 3 pièces 75 m2
| Ville | NANTERRE |
| Code postal | 92000 |
| Type de bien | Appartement |
| Surface | 75 m2 |
| Nombre de pièces | 3 pièces |
| Prix | 1 238,00 € |
| Informations sur l'annonceur | |
|---|---|
| Annonce de professionnel |
|
| Agence | LOISELET, DAIGREMONT PATRIMOINE Neuilly sur seine Voir toutes les annonces |
| Adresse | 14 RUE GARNIER |
| 92200 NEUILLY SUR SEINE | |
| Téléphone Fixe | 0155622600 |
| Portable |
Description
SANS FRAIS D'AGENCE Rue de Strasbourg à Nanterre, immeuble neuf de .Appartement T3 de 75,50m² + Terrasse au 3ème étage avec ascenseur. Chauffage collectif Parking en sous-sol. Logement soumis à conditions.
Les photos du bien
Les diagnostics
DPE
| Bâtiment économe |
|---|
| |
| |
| 135 |
| |
| |
| |
| |
| Bâtiment énergivore |
| en kWh.an/m².an |
GES
| Faible émission de GES* |
|---|
| |
| |
| 27 |
| |
| |
| |
| |
| Forte émission de GES* |
| * Gaz à effet de serre en KgeqCO2/m².an |