En location Boutique 4 pièces 77 m2

Ville TOULOUSE
Code postal 31500
Type de bien Boutique
Surface 77 m2
Nombre de pièces 4 pièces
Prix 1 300,00 €
Informations sur l'annonceur
Annonce de professionnel
Agence l'Adresse Toulouse - Côte Pavée
Voir toutes les annonces
Adresse
31500 Toulouse
Téléphone Fixe 0561248554
Portable 0661647633

Description

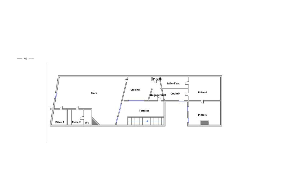
Toulouse, dans le secteur très prisé de Guilheméry, à 2 pas de la place Dupuy, proche des transports et des commerces, votre agence L'Adresse Immobilier Toulouse Côte Pavée et Pont des Demoiselles vous propose en exclusivité ce local professionnel de 77 m2. Rare dans le secteur. Ce local se trouve au 1er étage d'une petite copropriété de 3 lots occupés que par des professionnels. Il est composé de 3 pièces dont une de plus de 32 m2, avec une cuisine, une salle d'eau, un wc et une terrasse. Ce local a été entièrement rénové et peu accueillir toutes professions libérales. N'hésitez pas à nous contacter au 0661647633. Copropriété de 3 lots - dont 3 lots habitation.(Pas de procédure en cours).

Les photos du bien

Les diagnostics


DPE
Energie non communiquée
GES
GES non communiqué