En vente Appartement 4 pièces 75 m2
| Ville | Bron |
| Code postal | 69500 |
| Type de bien | Appartement |
| Surface | 75 m2 |
| Nombre de pièces | 4 pièces |
| Prix | 299 000,00 € |
| Informations sur l'annonceur | |
|---|---|
| Annonce de professionnel |
|
| Agence | Instant immobilier Lyon - Instant immobilier Voir toutes les annonces |
| Adresse | 18-20 rue tronchet |
| 69006 Lyon | |
| Téléphone Fixe | 0610525295 |
| Portable | 0626197556 |
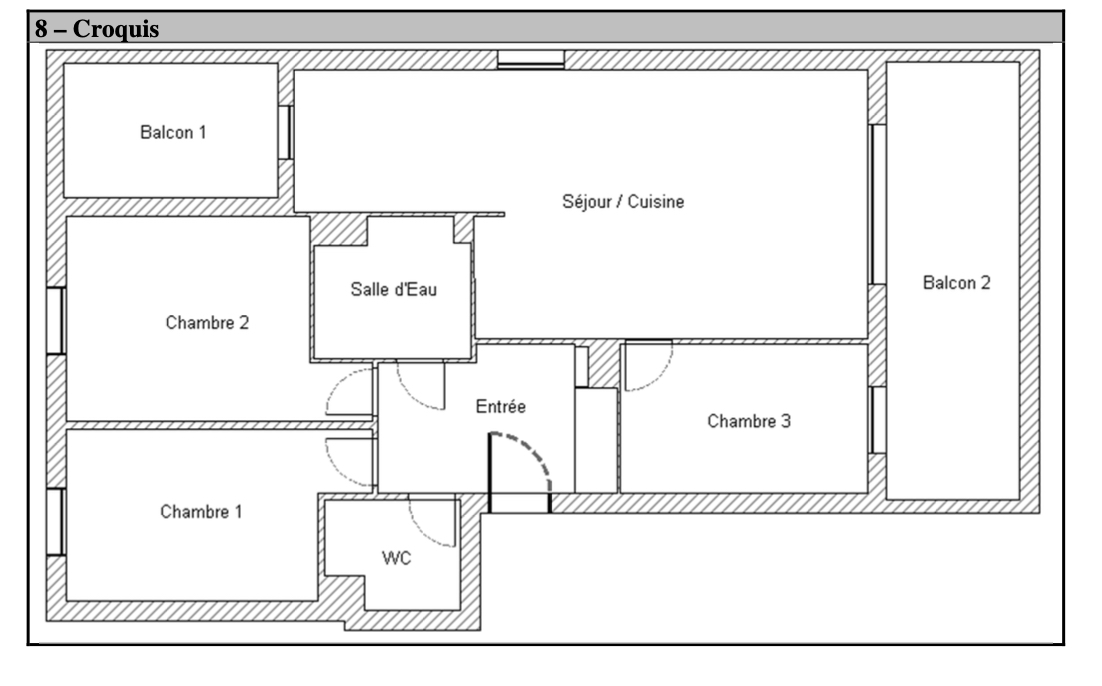
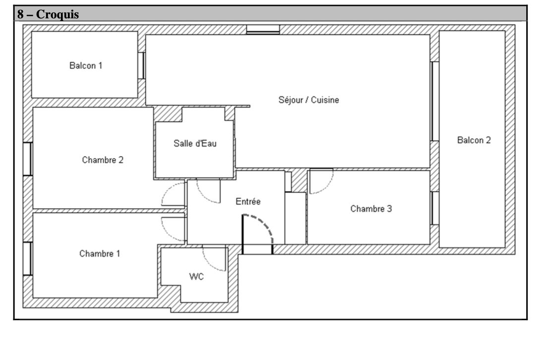
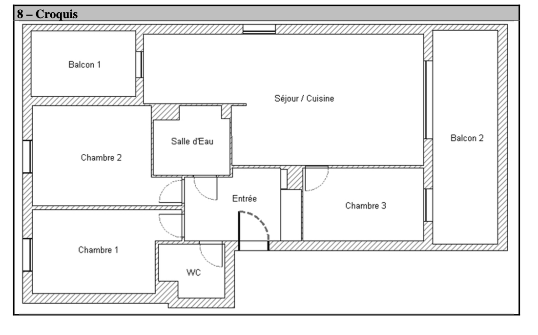
Description
A Bron, découvrez ce spacieux T4 idéalement situé à proximité du tram T2, des lignes de bus, de l'hippodrome de Parilly et du campus de l'Université Lumière Lyon 2. L'appartement s'ouvre sur une entrée avec placard, puis se poursuit par une agréable pièce de vie traversante avec cuisine ouverte sur le séjour, donnant accès au balcon ainsi qu'à la terrasse. Il dispose également de trois chambres, dont l'une offrant un accès direct à la terrasse, ainsi qu'une salle d'eau et des WC séparés. Possibilité d'acquérir un garage en sus. Contactez Marvin MIRO 06.10.52.52.95 Vivons ensemble votre Instant Immobilier - Estimation offerte sous 48h Copropriété de 113 lots - dont 51 lots habitation. Charges annuelles : 1262 euros.