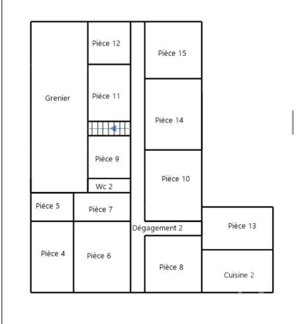
En vente Maison 15 pièces 250 m2
| Ville | BENAMENIL |
| Code postal | 54450 |
| Type de bien | Maison |
| Surface | 250 m2 |
| Nombre de pièces | 15 pièces |
| Prix | 135 000,00 € |
| Informations sur l'annonceur | |
|---|---|
| Annonce de professionnel |
|
| Agence | l'Adresse Metz Voir toutes les annonces |
| Adresse | |
| 57000 Metz | |
| Téléphone Fixe | 0387321515 |
Description
Maison à vendre en Exclusivité chez l'Adresse A découvrir sur notre site web ou en agence ! Présentation du Projet 3D Un aménagement d'intérieur innovant pour le salon/salle à manger, conçu de manière non contractuelle par un Architecte d'intérieur, illustrant le potentiel optimal de l'espace. Nous vous présentons une maison spacieuse de 15 pièces, offrant un cadre de vie privilégié et de nombreuses possibilités d'aménagement. 2 cuisines aménagées, une cuisine au rez-de-chaussée, idéale pour les repas en famille. Une seconde cuisine à l'étage pour un agencement fonctionnel. 2 salles d'eau, une salle d'eau au rez-de-chaussée et une à l'étage, assurant confort et praticité. 2 chambres au rez-de-chaussée avec un accès direct au jardin, parfait pour profiter des extérieurs. Accès au garage et dépendances Étage : Composé de plusieurs chambres et dressings, offrant des espaces privés et de rangement optimisé. Espace de rangement et de stationnement, avec la possibilité de transformation selon vos besoins. Note : Des travaux de rénovation sont à prévoir, permettant de personnaliser ce bien selon vos goûts. Cette propriété représente une opportunité idéale pour les investisseurs souhaitant créer 2 appartements d'environ 100 m² chacun, optimisant le potentiel locatif. Deux accès indépendants : Facilite l'accès pour les véhicules. Idéal pour une activité professionnelle indépendante ou pour la location. Le bien est idéalement situé dans un environnement calme et verdoyant, propice à une vie sereine. Terrain constructible de 1000 m² Offrant de multiples possibilités d'aménagement, que ce soit pour un projet personnel ou pour une exploitation locative. Vous souhaitez en savoir plus ou planifier une visite ? Contactez-nous dès maintenant pour obtenir le dossier complet et organiser une visite privée en exclusivité. Madame Julie HUMBERT (EI) Agence l'Adresse Tél : 06.88.11.25.83 (RSAC) Réf. 2627 Votre futur chez-vous vous attend !
Les photos du bien
Les diagnostics
| Bâtiment économe |
|---|
| |
| |
| |
| |
| 322 |
| |
| |
| Bâtiment énergivore |
| en kWh.an/m².an |
| Faible émission de GES* |
|---|
| |
| |
| |
| |
| |
| 71 |
| |
| Forte émission de GES* |
| * Gaz à effet de serre en KgeqCO2/m².an |