En vente Appartement 5 pièces 81 m2
| Ville | Menton |
| Code postal | 06500 |
| Type de bien | Appartement |
| Surface | 81 m2 |
| Nombre de pièces | 5 pièces |
| Prix | 295 000,00 € |
| Informations sur l'annonceur | |
|---|---|
| Annonce de professionnel |
|
| Nom | |
| Adresse | |
| 06000 |
Description
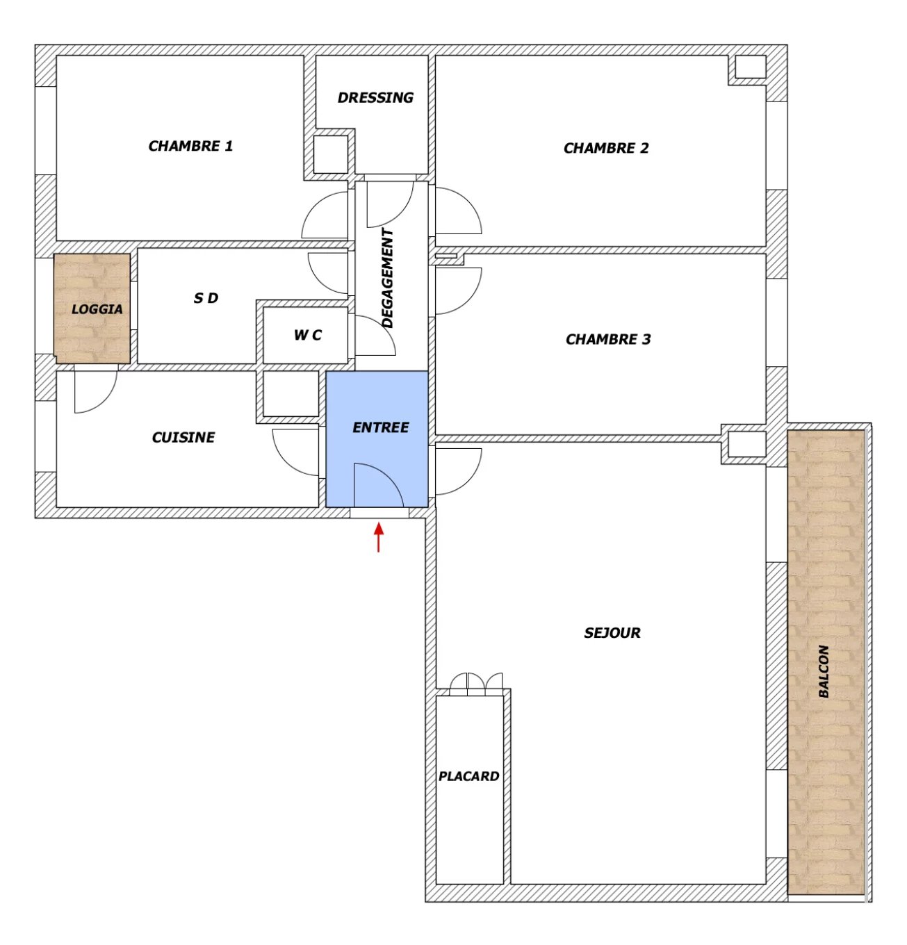
Situé dans le Haut Borrigo, quartier du Suillet, appartement type 4 / 5 pièces d'une superficie de 80 m2 traversant, bénéficiant d'un balcon et d'une loggia.. Ce bien est constitué d'une entrée, un double séjour permettant de créer une chambre supplémentaire, 3 chambres, une cuisine indépendante, une salle de douche et WC indépendants. Il bénéfice d'une exposition Est / Ouest. Une place de parking complète ce bien. Les informations sur les risques auxquels ce bien est exposé sont disponibles sur le site Géorisques "http://georisques.gouv.fr".
Les photos du bien
Les diagnostics
DPE
| Energie non communiquée |
|---|
GES
| Faible émission de GES* |
|---|
| |
| |
| |
| |
| |
| |
| 201 |
| Forte émission de GES* |
| * Gaz à effet de serre en KgeqCO2/m².an |