En vente Appartement 2 pièces

Ville Nice
Code postal 06300
Type de bien Appartement
Surface
Nombre de pièces 2 pièces
Prix 425 000,00 €
Informations sur l'annonceur
Annonce de professionnel
Agence Palais Immobilier
Voir toutes les annonces
Adresse
06300
Portable 0618783454

Description

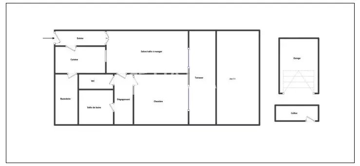
Nice Mont Boron - Cap De Nice Dans luxueuse résidence avec gardien, et piscine, vente DE LA NUE PROPRIETE d'un appartement 1 tête : femme 84 ans. Pas de rente. Le vendeur conserve l'usufruit total de l'appartement, du cellier et du garage. La vente porte sur trois lots dans cette copropriété. - L'appartement, d'une surface de 69,28m2 loi carrez en rez-de-jardin avec terrasse de 23,50m2 et jardin de 35m2 avec pleine vue mer. Il se compose d'une entrée, d'un séjour-salle à manger, d'une chambre, d'une cuisine indépendante, d'une buanderie, d'un dressing, d'une salle de bains, d'un W.C. - Un cellier sur le même palier. - Un garage simple.

Les photos du bien

Les diagnostics

Les informations complémentaires

Vente NUE PROPRIETE appartement 2/3 Pièces Résidence Cap de Nice