Description
Exclusivité Yannick SAUVIGNET - Entre Chasselay et Anse... LES CHERES, quartier de la Grande Charrière, environnement champêtre en bordure de zone verte et exposition Sud et Est pour votre projet de construction/rénovation au calme absolu et hors lotissement.
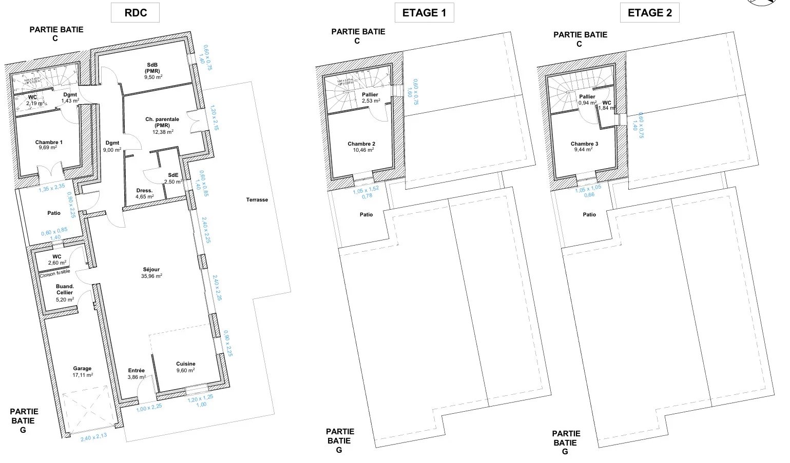
Saisissez cette chance de concrétiser votre rêve de maison individuelle traditionnelle ou contemporaine, sur cette parcelle de 566 m² en partie bâtie et viabilisée. Emprise au sol maximale pour une surface habitable potentielle de plus de 120 à 250 m²... Possibilité de modification des plans proposés (réduction ou agrandissement). Lot bâti vendu avec condition d'obtention d'un permis de construire.
Accès direct chemin pédestre ou vélo, running, gravel, vtt...
Libre constructeur, mais possibilité d'un accompagnement dans votre projet de construction/rénovation avec un de nos partenaires locaux à la réputation certifiée.
A 500 m de l'école et des commodités, 4 km de la gare de Quincieux, 5 km de la gare de St Germain et Anse, 9 km de l'accès A6 Portes de Lyon, 15 km de LYON.
Pour tous renseignements complémentaires ou visite, et pour bénéficier de conseils pertinents, avec plus de 100 terrains à bâtir vendus sur les secteurs rurbains Lyonnais, des Monts d'Or à la Calade, du Val de Saône aux Pierres Dorées, de la Vallée d'Azergues au Beaujolais... Vous pouvez contacter Yannick SAUVIGNET au 06 69 42 69 69, statut salarié, dirigeant,
Plus de Les informations sur les risques auxquels ce bien est exposé sont disponibles sur le site Géorisques : www.georisques.gouv.fr