Description
ESCLUSIVO
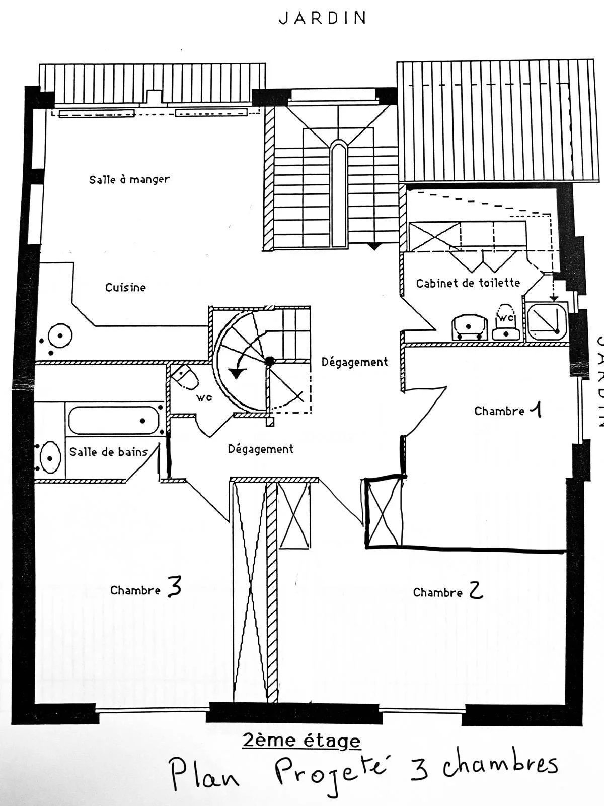
Nel cuore di un palazzo del XIX secolo, arretrato rispetto a Rue Peronnet, questo appartamento situato al 2ᵉ piano accessibile da una scala interna e privata offre 142 m² (130,57m2 Carrez) distribuiti su due livelli con una terrazza di 20m2 e uno studio di servizio di 21m2.
L'appartamento è composto da un pianerottolo, una cucina abitabile, due camere da letto (17 e 21 m2), un bagno con doccia, un bagno di servizio e un ufficio (9 m2). Al piano superiore (ultimo piano) si trova un ampio soggiorno con soffitto a cattedrale (45 m2) con camino e accesso a una terrazza a un piano, esposta a ovest (20 m2).
Questo affascinante appartamento gode di molta luce solare ed è uno spazio abitativo completo.
Uno studio di 21 m² al livello del giardino, due cantine e due posti auto completano questa proprietà.