En vente Appartement 3 pièces 67 m2

Ville SOTTEVILLE LES ROUEN
Code postal 76300
Type de bien Appartement
Surface 67 m2
Nombre de pièces 3 pièces
Prix 223 000,00 €
Informations sur l'annonceur
Annonce de professionnel
Agence VALORITY ADMINISTRATION DE BIENS
Voir toutes les annonces
Adresse 94, Quai Charles de Gaulle
69006 Lyon
Téléphone Fixe 0970808085

Description

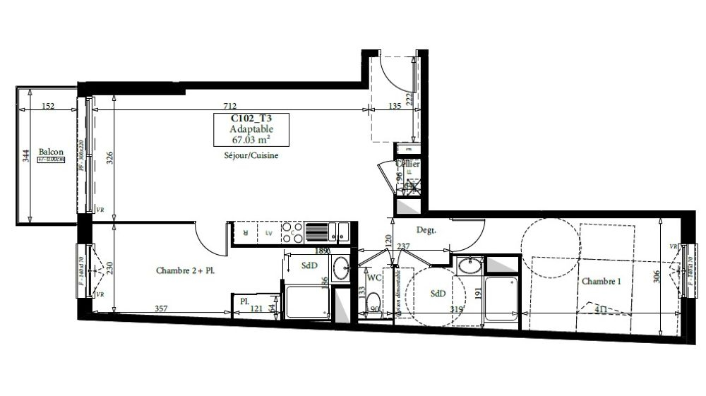
SOTTEVILLE LES ROUEN - Rue Pierre Corneille. Emplacement idéal, proche de toutes commodités. Ce bel appartement T3 d'une superficie de 67,45 m² Carrez se situe au 1er étage d'une résidence de 2025. Il se compose : - d'un séjour avec cuisine ouverte aménagée de 30 m² - d'un balcon de 5,70 m² - d'une chambre de 11 m² avec sa salle d'eau attenante - d'une seconde chambre de 13 m² - d'une seconde salle d'eau - d'un WC indépendant Une place de parking privative complète ce bien. Chauffage individuel gaz. Ses atouts : Proche des commerces et des transports, résidence neuve, prestations, balcon et parking sous-sol. Copropriété de 137 lots - dont 69 lots habitation.(Pas de procédure en cours).

Les photos du bien

Les diagnostics


DPE
Bâtiment économe
70
Bâtiment énergivore
en kWh.an/m².an
GES
Faible émission de GES*
13
Forte émission de GES*
* Gaz à effet de serre en KgeqCO2/m².an