Description
RIF. 784 - Fabbricato per Civile Abitazione in Vendita a Marsala
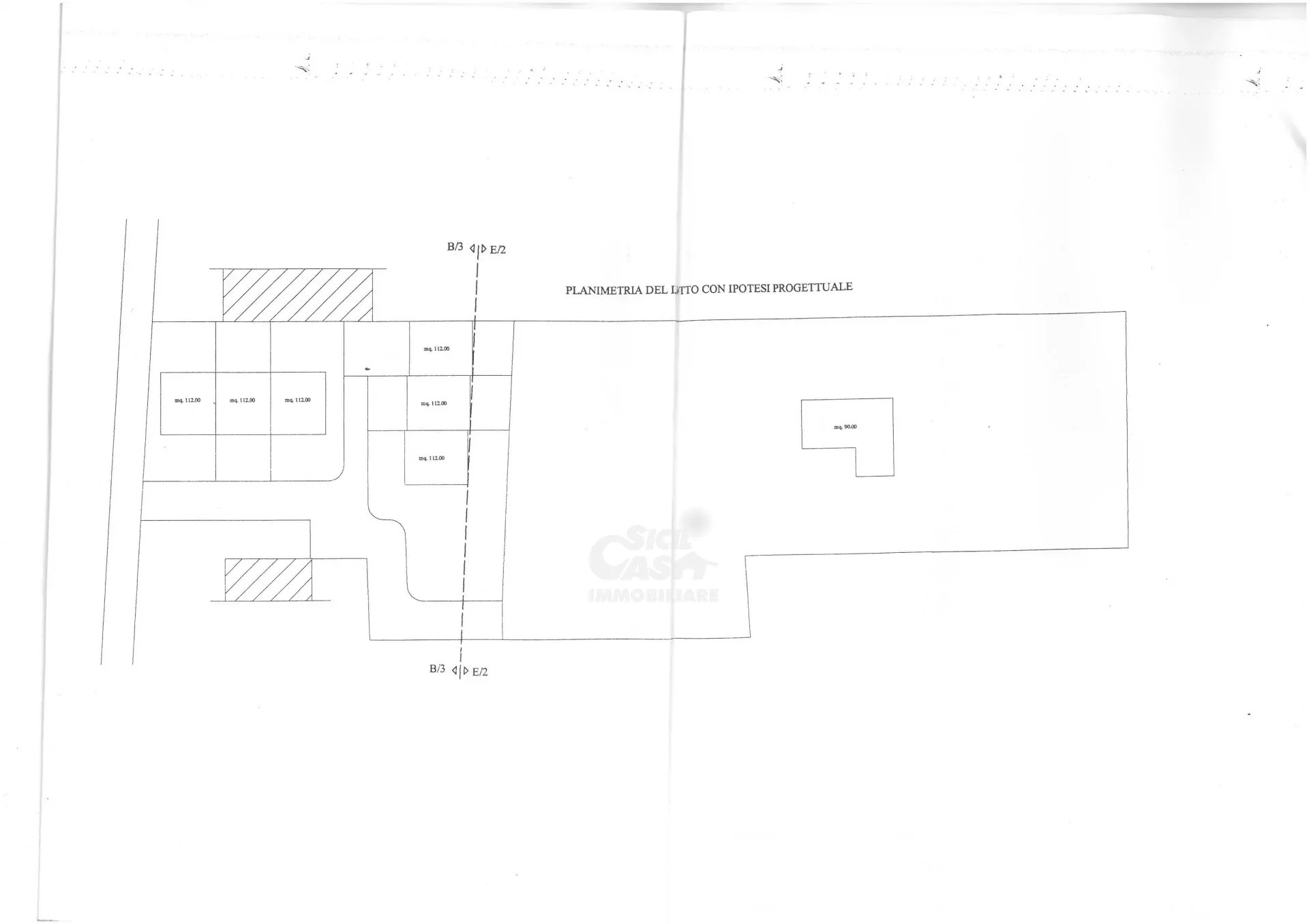
Se stai cercando un'opportunità unica di investimento nella tranquilla periferia nord di Marsala (TP), questo immobile è ciò che fa per te. In vendita, questo fabbricato per civile abitazione offre una superficie di circa 130 mq, composta da 3 vani al piano terra, un magazzino, un pollaio e una pagliera, con annesso lotto di terreno parzialmente edificabile (B3)
La proprietà è circondata da un ampio lotto di terreno di 4570 mq, una vera oasi per gli amanti della natura e per chi desidera uno spazio all'aperto dove dedicarsi a giardinaggio o altre attività ricreative. Attualmente, la casa dispone di una camera da letto e un bagno, ma con alcune modifiche, può facilmente essere trasformata in un'accogliente dimora familiare perfetta per tutti.
Nonostante le condizioni attuali, questo fabbricato rappresenta un'ottima opportunità per chi cerca una residenza serena lontano dal caos cittadino.
Inoltre il lotto di terreno edificabile presenta un indice di edificabilità che permette di realizzare un complesso edilizio di oltre 1200 mq, rendendo questa proprietà ancor più interessante per investitori o per chi desidera avviare un progetto di sviluppo.
Non perdere questa occasione imperdibile. Per maggiori informazioni e per organizzare una visita, non esitare a contattarci!