En vente Boutique 4 pièces 200 m2
| Ville | COURCON |
| Code postal | 17170 |
| Type de bien | Boutique |
| Surface | 200 m2 |
| Nombre de pièces | 4 pièces |
| Prix | 130 000,00 € |
| Informations sur l'annonceur | |
|---|---|
| Annonce de professionnel |
|
| Agence | BLOWSENS Sainte Soulle - BLOWSENS Voir toutes les annonces |
| Adresse | 73 Rue de l'Aunis |
| 17220 SAINTE SOULLE | |
| Téléphone Fixe | 0516405020 |
| Portable |
Description
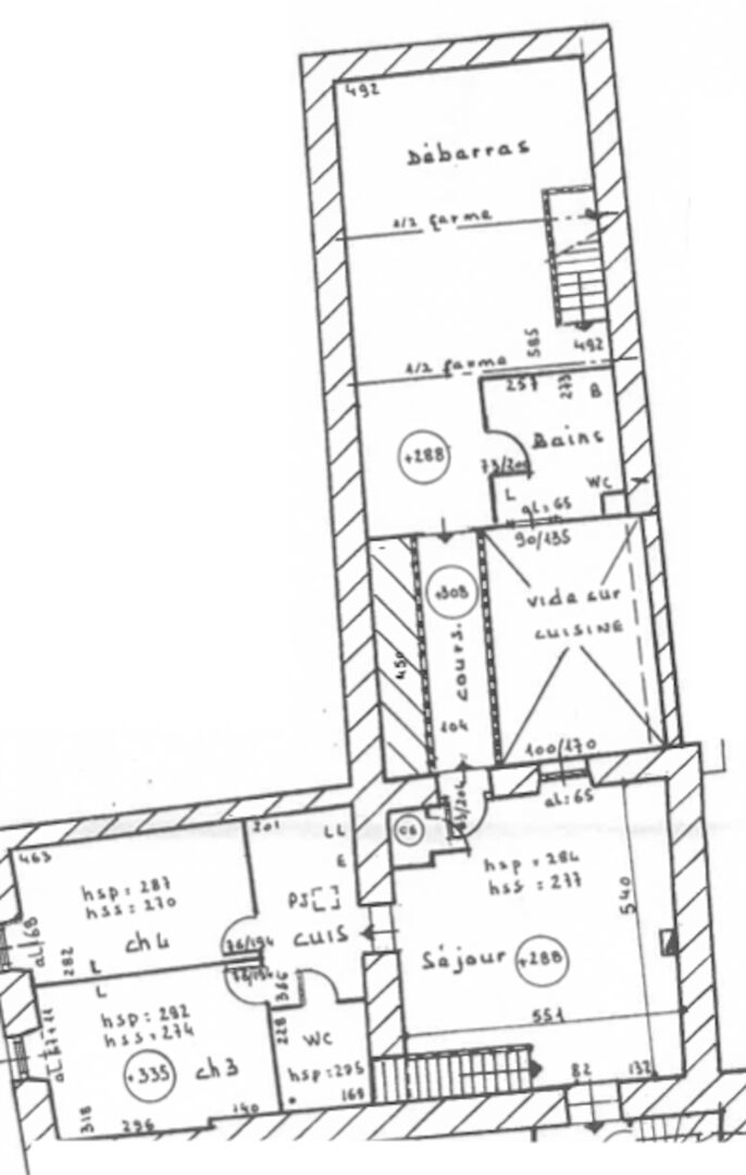
AEXCLUSIVITE BLOWSENS vendre-Local commercial + logement Emplacement N°1- SUR LA PLACE DU VILLAGE - Aux portes du Marais Poitevin - Situé sur la place principale de Courçon, à l'emplacement le plus prisé du village ,ce bien offre un cadre idéal pour developper une activité professionnelle tout en profitant d'un environnement charmant et dynamique. Courçon, village de 2267 habitants, bénéficie d'une école primaire, d'un collége , d'un complexe sportif ,et reste à quelques kilomètres d'une zone commerciale dynamique. Le tout, aux portes du Marais Poitevin, un secteur naturel recherché et trés apprécié. Ensemble immobilier comprenant un local commercial et un appartement à l'étage . Les informations sur les risques auxquels ce bien est exposé sont disponibles sur le site Géorisques : www.georisques.gouv.fr N° de mandat 3138 - Frais d'agence Inclus à la charge Vendeur - Pour visiter, ou pour toutes informations, contactez votre agence BLOWSENS Immobilier au 05.16.40.50.20. Toutes nos annonces sont disponibles sur notre site internet : www.blowsens.fr
Les photos du bien
Les diagnostics
| Bâtiment économe |
|---|
| |
| |
| |
| |
| 306 |
| |
| |
| Bâtiment énergivore |
| en kWh.an/m².an |
| Faible émission de GES* |
|---|
| |
| 8 |
| |
| |
| |
| |
| |
| Forte émission de GES* |
| * Gaz à effet de serre en KgeqCO2/m².an |