En vente Local 148 m2

Ville Dunkerque
Code postal 59430
Type de bien Local
Surface 148 m2
Nombre de pièces
Prix 172 000,00 €
Informations sur l'annonceur
Annonce de professionnel
Agence IMOCONSEIL
Voir toutes les annonces
Adresse
Négociateur Pascal ROHART PRIMO DUNKERQUE
59430 dunkerque
Téléphone 06-46-30-79-86

Description

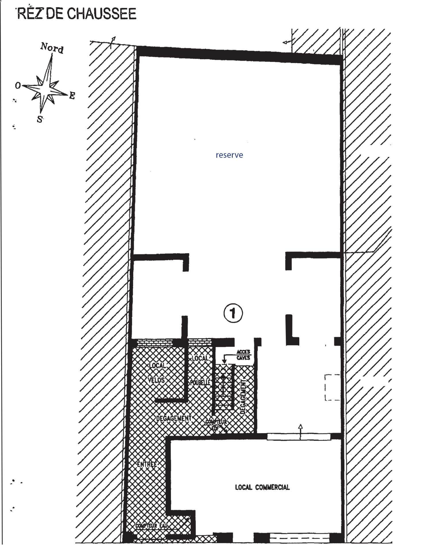
Murs commerciaux vendus loués ou libres

Situés en zone franche, profitez d'une belle opportunité d'investissement avec ces murs commerciaux, actuellement occupés par un locataire stable et fiable. Ce bien est vendu avec un bail récent, offrant une rentabilité locative immédiate et sécurisée mais peu également être libéré pour laisser place à votre activité.

Caractéristiques des murs commerciaux :


Surface totale : 148m2


Situés sur la Rue de la République, axe principal de Saint-Pol-Sur-Mer


Locataire en place, bail 3/6/9 signé fin 2023


Loyer annuel : 12900EUR


Pas de Taxe Foncière !


Belle visibilité, bon linéaire vitré, belle zone de stockage


Accès facile et proximité de toutes commodités


Adaptable à différents types d'activités commerciales


Avantages :


Situé en zone franche


Emplacement attractif, bien situé dans une zone à fort passage


Aucun travaux à prévoir


Investissement sécurisé dans un secteur dynamique


Les informations sur les risques auxquels ce bien est exposé sont disponibles sur le site Géorisques : www.georisques.gouv.fr Agent Commercial

Les photos du bien

Les diagnostics

Les informations complémentaires

Murs commerciaux en Zone Franche
Prix de vente honoraires TTC inclus : 165 000 €