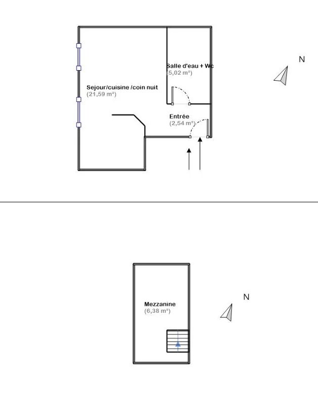
En vente Appartement 1 pièce 29 m2
| Ville | Cannes |
| Code postal | 06400 |
| Type de bien | Appartement |
| Surface | 29 m2 |
| Nombre de pièces | 1 pièce |
| Prix | 185 000,00 € |
| Informations sur l'annonceur | |
|---|---|
| Annonce de professionnel |
|
| Agence | J P L Voir toutes les annonces |
| Adresse | 46 Rue d'Antibes |
| 06400 Cannes | |
| Téléphone Fixe | 0493390064 |
Description
A poca distanza dal centro e dal Palais des Festivals, questo monolocale ristrutturato incarna il pied-à-terre ideale o un investimento locativo di prima scelta. Arredato con cura, offre un soggiorno aperto su una cucina moderna, arredata e attrezzata, un angolo notte in soppalco e un bagno dotato di vasca idromassaggio, per un comfort ottimale quotidiano. Venduto arredato e situato in un ambiente tranquillo e verdeggiante. Potenziale locativo attraente. Ottime prestazioni, bassi oneri e tassa sulla proprietà. Le informazioni sui rischi a cui è esposto questo bene sono disponibili sul sito Géorisques http://georisques.gouv.fr