En vente Maison 4 pièces 80 m2

Ville TERCE
Code postal 86800
Type de bien Maison
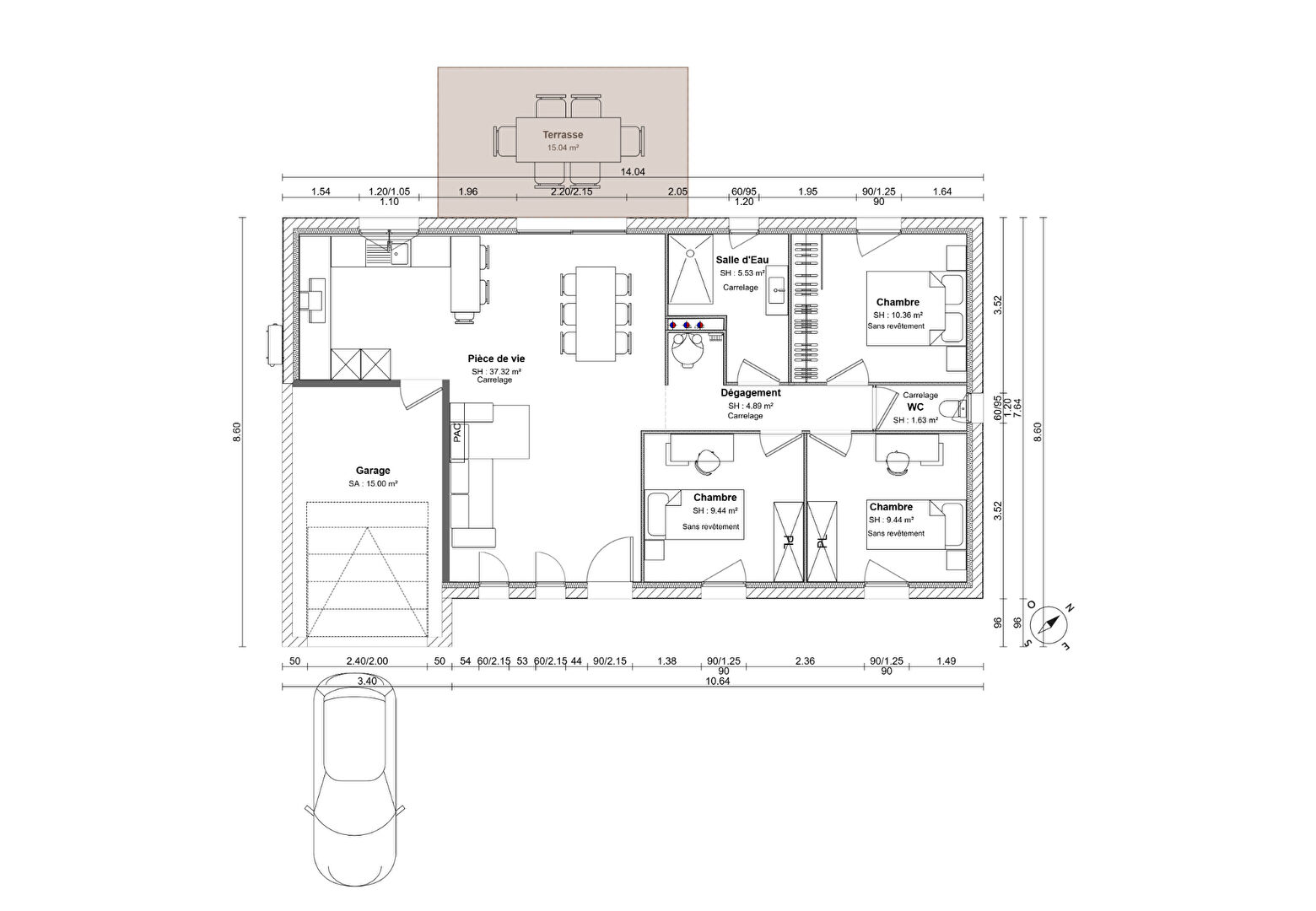
Surface 80 m2
Nombre de pièces 4 pièces
Prix 179 900,00 €
Informations sur l'annonceur
Annonce de professionnel
Agence AGENCES IMMOVIENNE - SAINT JULIEN L'ARS - AGENCES IMMOVIENNE SAINT JULIEN L'ARS
Voir toutes les annonces
Adresse 22 ROUTE POITIERS
86800 SAINT JULIEN L'ARS
Téléphone Fixe 0549500405
Portable

Description

Votre agence IMMOVIENNE vous présente ce projet sur une parcelle de 850m² viabilise. Ce projet est élaboré en partenariat avec notre maître d'oeuvre INSTEAD à Poitiers et vous propose cette maison de Plain Pied en Re2020 .Cette maison est l'alliance du confort et de la compacité. Son vaste espace de vie est associé à trois belles chambres. Le garage intégré ajoute au confort de cette maison et permet un décalage de la cuisine par rapport au salon/séjour. Ses nombreuses ouvertures vous assureront un accès direct vers le jardin. Le terrain hors lotissement vous apportera la tranquillité et vue imprenable sur la campagne .

Les photos du bien

Les diagnostics


DPE
Energie non communiquée
GES
GES non communiqué