En location Appartement 2 pièces 45 m2
| Ville | Reims |
| Code postal | 51100 |
| Type de bien | Appartement |
| Surface | 45 m2 |
| Nombre de pièces | 2 pièces |
| Prix | 637,00 € |
| Informations sur l'annonceur | |
|---|---|
| Annonce de professionnel |
|
| Agence | AMG immobilier Voir toutes les annonces |
| Adresse | |
| 51100 reims | |
| Téléphone Fixe | 0326034467 |
Description
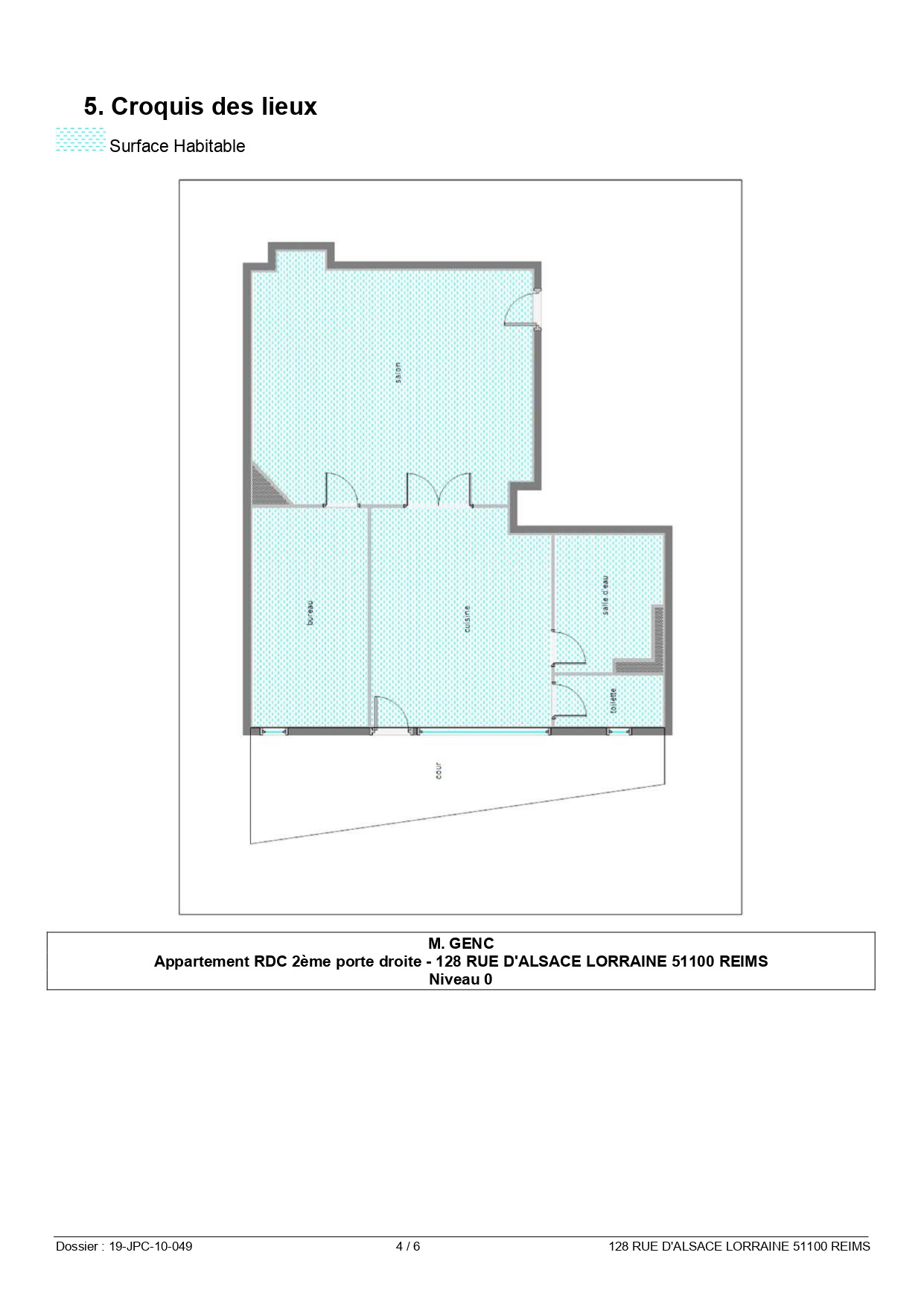
Adresse de l'appartement : 128 rue d'Alsace Lorraine à REIMS
Appartement disponible : immédiatement
Appartement RDC 44,85 m2 comprenant : salon, cuisine aménagée avec un accès à une petite courette pouvant accueillir une table et 2 chaises, salle de douche, wc, une chambre.
Cuisine : Equipée (plaque électrique, four, hotte)
Cour privative
LOYER HORS CHARGES : 557 euros
FORFAIT DE CHARGES :80 euros / mois 'chauffage collectif gaz , eau froide et chaude, entretien des parties communes'
DEPOT DE GARANTIE : 557 euros
HONORAIRES AGENCE : 493,35 euros
Les photos du bien
Les diagnostics
DPE
| Bâtiment économe |
|---|
| |
| |
| |
| |
| |
| 332 |
| |
| Bâtiment énergivore |
| en kWh.an/m².an |
GES
| Faible émission de GES* |
|---|
| |
| |
| |
| |
| 69 |
| |
| |
| Forte émission de GES* |
| * Gaz à effet de serre en KgeqCO2/m².an |
Les informations complémentaires
2 pièces proche toutes commodités quartier résidentiel