En vente Appartement 2 pièces 28 m2

Ville Villarembert
Code postal 73300
Type de bien Appartement
Surface 28 m2
Nombre de pièces 2 pièces
Prix 60 230,00 €
Informations sur l'annonceur
Annonce de professionnel
Agence PATRIM RIVIERA
Voir toutes les annonces
Adresse
06400 Cannes
Téléphone Fixe 0483153018

Description

Investissement locatif sous bail commercial résidence de tourisme gérée
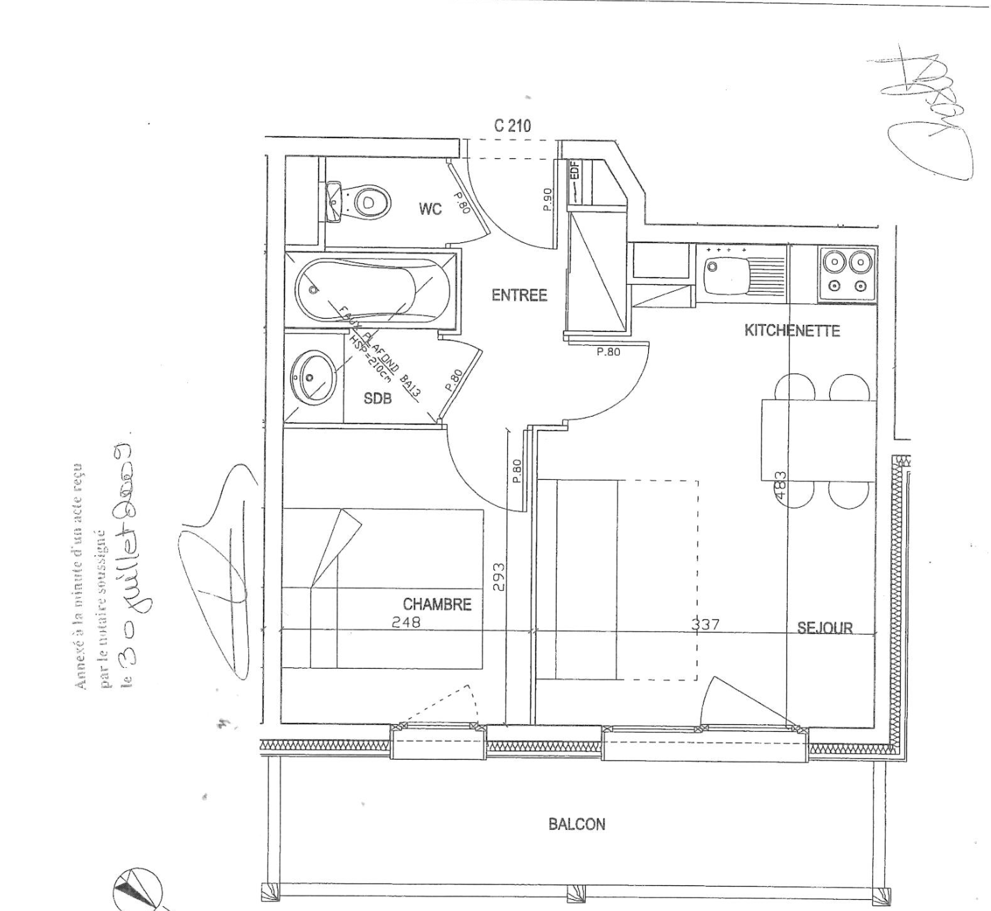
Un appartement de type T2, au 6è étage portant le numéro 608, d'une surface de 28.39 m2, comprenant une entrée-dégagement, un séjour-kitchenette, une chambre, une salle de bains, wc, placards.
Bail commercial du 1er octobre 2021 pour une durée de 9 ans, soit jusqu'au 30 septembre 2030.
Un bail commercial récent, avec loyer purgé de toute baisse
- Jusqu'à 5 semaines d'occupation en mai, juin, septembre et octobre
Un balcon de 3.9 m2
Loyer perçu propriétaire annuel HT : 3175,00 EUR
Charges générales de copropriété / an : 510,00 EUR
Taxe foncière : 558,00 EUR
Pour plus d'informations contactez Patrim Riviera tel 06.07.97.52.91

Bénéficiez de notre pôle dédié à l'achat : service courtage en financement , gestion locative, accompagnement juridique et fiscal.

Les photos du bien

Les diagnostics

Les informations complémentaires

Investissement locatif sous bail commercial
Prix de vente honoraires TTC inclus : 60 230 €