En vente Immeuble 89 m2
| Ville | Pointe-à-Pitre |
| Code postal | 97110 |
| Type de bien | Immeuble |
| Surface | 89 m2 |
| Nombre de pièces | |
| Prix | 218 000,00 € |
| Informations sur l'annonceur | |
|---|---|
| Annonce de professionnel |
|
| Agence | Agence Immo Conseil Voir toutes les annonces |
| Adresse | CC l'Etoile Carrefour Blanchard la marina |
| 97110 Pointe-à-Pitre | |
| Téléphone Fixe | 0590381088 |
Description
Votre agence Immoconseil, vous présente en exclusivité cet immeuble sur la commune de Pointe-à-Pitre.
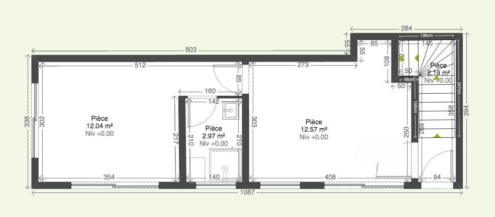
L'immeuble est composé :
-Au rez-de-chaussée, un local à usage commercial d'une superficie de 29.77 m2 comprenant deux pièces et une salle d'eau avec WC.
-Au premier étage, un studio de 28.95 m2 composé d'une entrée, une cuisine, un espace de vie, une salle d'eau avec WC, ainsi qu'un balcon.
-Au deuxième étage, un appartement de 29,88 m2 vient compléter l'ensemble, avec une disposition identique : entrée, cuisine, espace de vie, salle d'eau avec WC et balcon.
Vous souhaitez le visiter ? N'hésitez pas à contacter l'agence Immoconseil au 0590 38 10 88.
Les photos du bien
Les diagnostics
Les informations complémentaires
En exclusivité ! Immeuble situé à proximité du port de Point
Prix de vente honoraires TTC inclus : 218 000 €