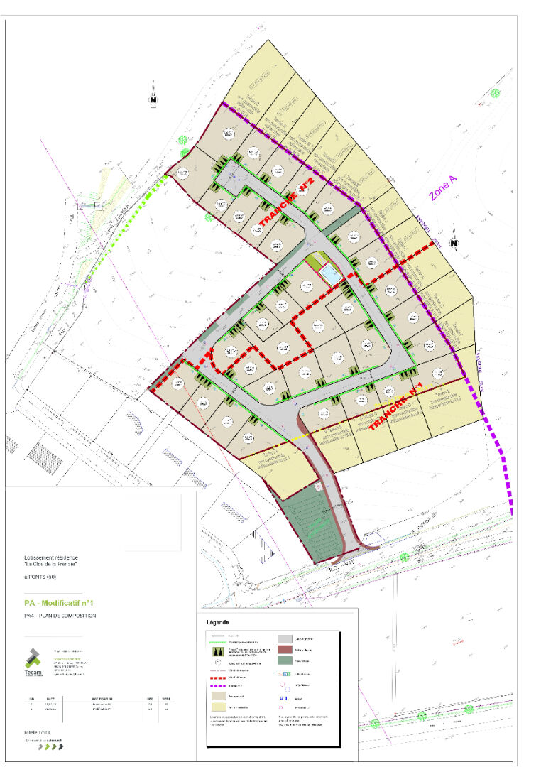
En vente Terrain 239 m2
| Ville | PONTS |
| Code postal | 50300 |
| Type de bien | Terrain |
| Surface | 239 m2 |
| Nombre de pièces | |
| Prix | 29 500,00 € |
| Informations sur l'annonceur | |
|---|---|
| Annonce de professionnel |
|
| Agence | CABINET FOLLIOT - Granville Voir toutes les annonces |
| Adresse | |
| 50400 GRANVILLE | |
| Téléphone Fixe | 0233914050 |
Description
Le cabinet FOLLIOT vous propose ce terrain à bâtir viabilisé d'environ 239m² exposé sud . Ce terrain est situé sur la commune d' Avranches à PONTS, à seulement 3 km d'Avranches. Pour plus de renseignements nous vous invitons à prendre contact avec votre cabinet FOLLIOT. Les informations sur les risques auxquels ce bien est exposé sont disponibles sur le site Géorisques : www.georisques.gouv.fr