En vente Appartement 3 pièces 68 m2

Ville SAINT ALBAN LEYSSE
Code postal 73230
Type de bien Appartement
Surface 68 m2
Nombre de pièces 3 pièces
Prix 287 000,00 €
Informations sur l'annonceur
Annonce de professionnel
Agence COMPARET IMMO - COMPARET IMMOBILIER AIX LES BAINS
Voir toutes les annonces
Adresse 10 avenue du petit port
73100 Aix les Bains
Téléphone Fixe 0479520878
Portable

Description

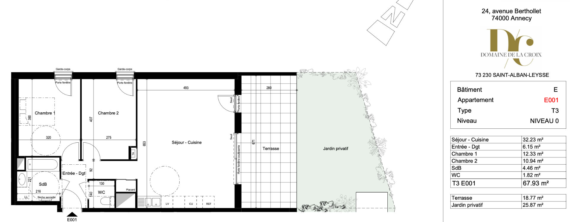
DOMAINE DE LA CROIX - APPARTEMENT T3 EN REZ-DE-JARDIN - AVEC GARAGE - LIVRAISON SEPTEMBRE 2027 A seulement 5 minutes de Chambéry, au sein du très recherché Domaine de la Croix, découvrez ce bel appartement T3 de 68m2 en rez-de-jardin, niché dans un environnement naturel préservé, au coeur d'un parc arboré de 1,6 hectare. L'appartement offre une pièce de vie lumineuse (32m2) avec cuisine ouverte, prolongée par un jardin-terrasse privatif d'environ 44m2, idéal pour profiter des beaux jours, recevoir ou créer un véritable espace de détente face aux montagnes du Nivolet et du Mont Peney. L'espace nuit se compose de deux chambres confortables, d'une salle de bain moderne et de WC indépendants, pensés pour un confort optimal au quotidien. Un garage fermé est vendu avec l'appartement. La résidence, à taille humaine, se distingue par son architecture élégante, ses prestations soignées et son engagement environnemental, avec notamment un chauffage collectif au bois, garantissant confort thermique et maîtrise des consommations. Situé à proximité immédiate des écoles, commerces, transports et axes routiers, ce T3 en rez-de-jardin constitue une opportunité idéale aussi bien pour une résidence principale que pour un investissement sécurisé dans le neuf. François Picollier (EI) Agent Commercial - Numéro RSAC : 841 755 416 - Chambery.

Les photos du bien

Les diagnostics