En vente Appartement 4 pièces 246 m2

Ville Nice
Code postal 06200
Type de bien Appartement
Surface 246 m2
Nombre de pièces 4 pièces
Prix 535 000,00 €
Informations sur l'annonceur
Annonce de professionnel
Nom
Adresse
06390
Téléphone Fixe 0483437678

Description

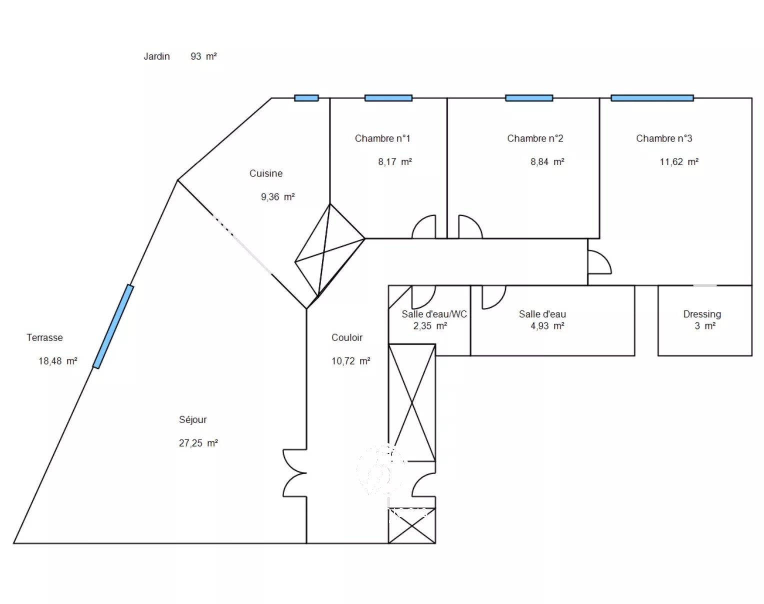
Nice Ventabrun / Route de bellet : Terrasses - Vue Mer - Parkings Au sein d’une résidence avec piscine, nichée dans un environnement calme, appartement de 90 m² bénéficiant d’une agréable vue mer. Vaste séjour avec cuisine ouverte, s’ouvrant sur une terrasse prolongée par un jardin privatif de 93 m² exposée Sud - Ouest. L’espace nuit offre trois chambres, une salle de bains, une salle de douche avec WC ainsi que des dressings. Une cave et deux emplacements de stationnement complètent ce bien. Honoraires à la charge du vendeur. Les informations sur les risques auxquels ce bien est exposé sont disponibles sur le site Géorisques : georisques.gouv.fr Bien soumis au régime de la copropriété Nombre de lots dans la copropriété : 32 Aucune procédure en cours (articles 29-1A/29-1 loi 65-557, L.615-6 du CCH) Consommation énergétique: 239 kWhep/m2.an Emissions de gaz à effet de serre: 7 kgeqCO2/m2.an Montant bas estimé des dépenses annuelles pour un usage standard 1660 € / an Montant haut estimé des dépenses annuelles pour un usage standard 2260 € / an La présente annonce immobilière a été rédigée sous la responsabilité éditoriale de l'agent commercial mandaté pour la vente de ce bien.

Les photos du bien

Les diagnostics