En vente Appartement 3 pièces
| Ville | Ars-Laquenexy |
| Code postal | 57530 |
| Type de bien | Appartement |
| Surface | |
| Nombre de pièces | 3 pièces |
| Prix | 426 384,00 € |
| Informations sur l'annonceur | |
|---|---|
| Annonce de professionnel |
|
| Agence | Nat'Immobilier Voir toutes les annonces |
| Adresse | |
| Téléphone Fixe | +262693855502 |
Description
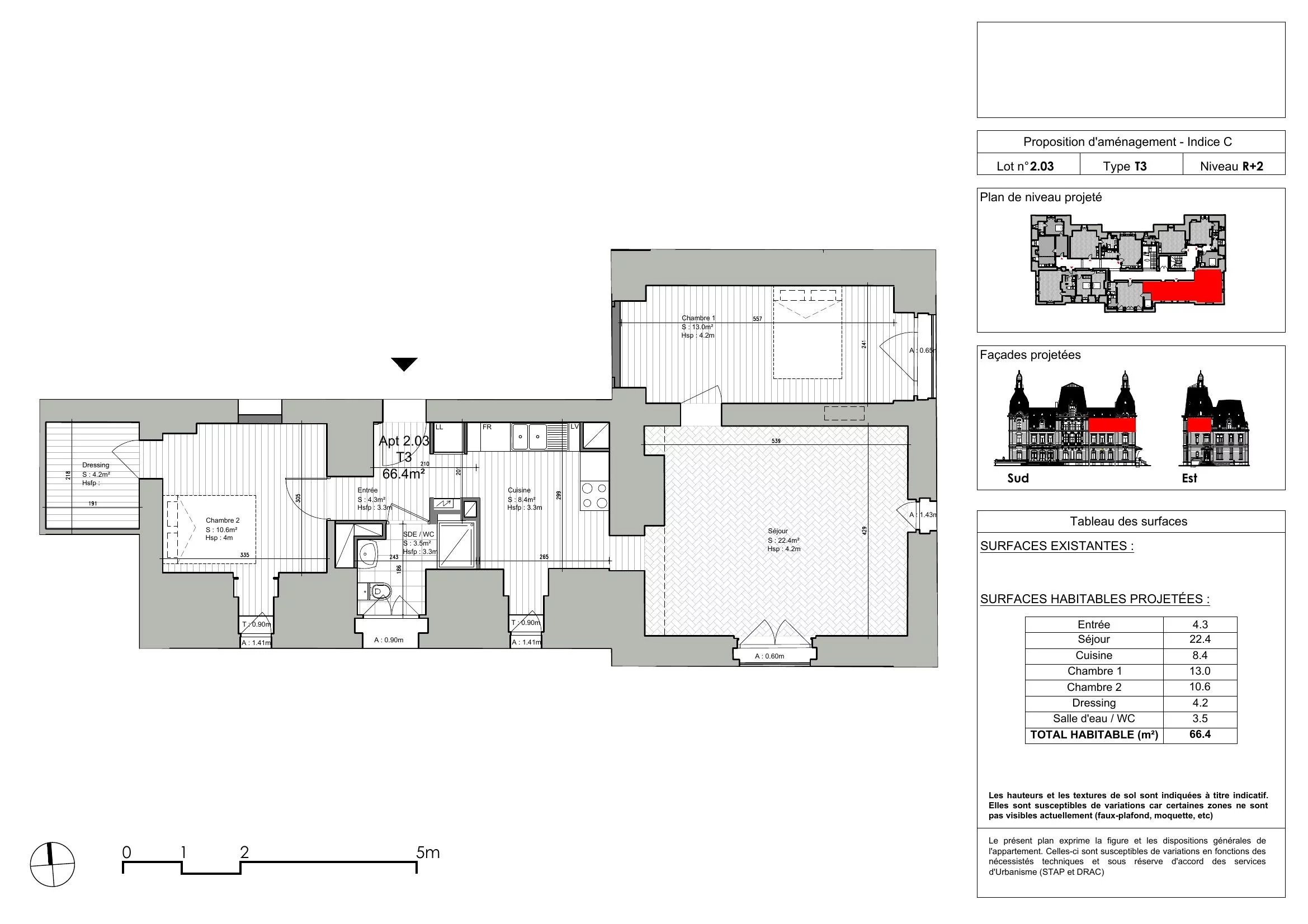
Cet élégant appartement de 66,4 m² est situé dans le prestigieux Château de Mercy, à Ars-Laquenexy. Il offre un cadre de vie unique avec son architecture historique et ses finitions modernes. Doté de deux chambres spacieuses, cet espace est idéal pour ceux qui recherchent le charme et l'élégance dans un environnement paisible. L'appartement comprend trois pièces bien agencées, dont un salon lumineux et accueillant. Les grandes fenêtres permettent une abondance de lumière naturelle, mettant en valeur les détails architecturaux exceptionnels. Chaque chambre offre une atmosphère cosy parfaite pour la détente après une longue journée. Proche de Metz, cette résidence bénéficie d'un accès facile aux commodités locales et aux transports. Avec la livraison prévue pour le quatrième trimestre 2025, c'est une opportunité rare d'acquérir une propriété dans un monument historique tout en profitant du confort moderne.