En vente Appartement 3 pièces
| Ville | Ars-Laquenexy |
| Code postal | 57530 |
| Type de bien | Appartement |
| Surface | |
| Nombre de pièces | 3 pièces |
| Prix | 555 520,00 € |
| Informations sur l'annonceur | |
|---|---|
| Annonce de professionnel |
|
| Agence | Nat'Immobilier Voir toutes les annonces |
| Adresse | |
| Téléphone Fixe | +262693855502 |
Description
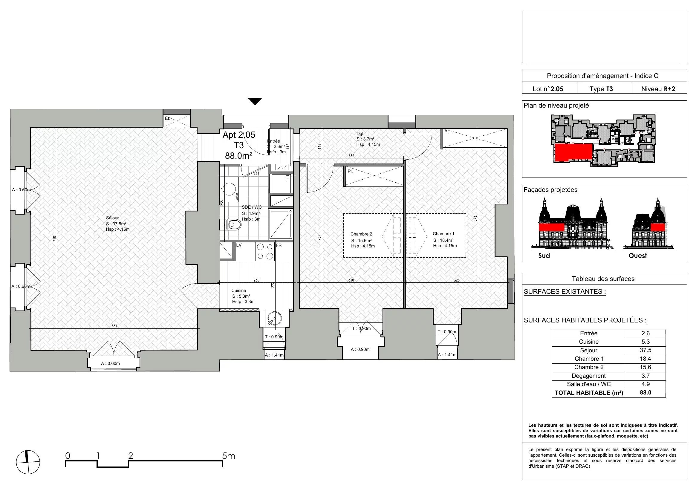
Découvrez ce magnifique appartement de 88 m² situé dans un cadre d'exception à Ars-Laquenexy. Doté de deux chambres spacieuses, il offre un espace de vie lumineux et accueillant. Ce bien rare se trouve dans un bâtiment historique, alliant le charme de l'ancien aux commodités modernes. Le salon, au cœur de l'appartement, se prête parfaitement à la détente et aux réceptions. La cuisine, entièrement équipée, saura séduire les amateurs de gastronomie. Chaque chambre est conçue pour offrir un maximum de confort et de tranquillité, avec des finitions soignées. Ce logement est idéalement situé, offrant un accès facile aux commerces de proximité et aux transports en commun. Profitez d'une qualité de vie exceptionnelle dans un environnement historique, tout en bénéficiant des avantages fiscaux liés aux monuments historiques. Ne manquez pas cette opportunité unique d'investir dans un patrimoine remarquable.