En location Maison 5 pièces 130 m2
| Ville | Vaucresson |
| Code postal | 92420 |
| Type de bien | Maison |
| Surface | 130 m2 |
| Nombre de pièces | 5 pièces |
| Prix | 2 460,00 € |
| Informations sur l'annonceur | |
|---|---|
| Annonce de professionnel |
|
| Agence | Bella DN Voir toutes les annonces |
| Adresse | 2 Rue Aubriet |
| 92420 Vaucresson |
Description
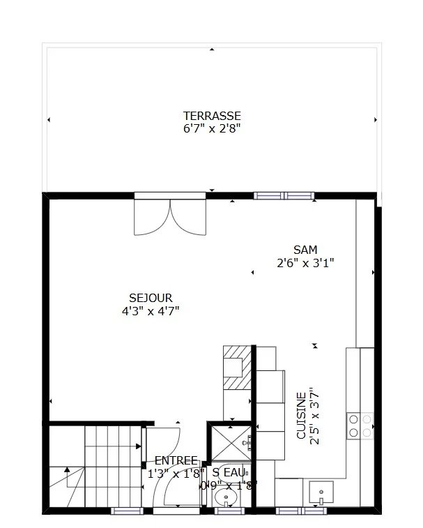
A Louer en meublé : Maison de ville rénovée entre 2021 et 2025 située dans résidence verdoyante. Lumineuse, calme et jolie vue sur la verdure. Aucun vis-à-vis. Vous trouverez au RDC : un espace de vie de plus de 35m2 traversant EST-OUEST avec cuisine ouverte équipée (frigo, plaques induction, lave vaisselle, four, micro-ondes, lave linge) et cheminée à foyer fermé pour les soirées d'hiver, terrasse de 20m2, salle d'eau avec WC. Au 1er étage : 3 chambres entre 9 et 11m2, 1 salle d'eau avec WC. Au 2e étage : 1 grande pièce idéale pour un bureau ou un espace pour enfants (1,70m de hauteur au plus haut). Sous-sol de 17m2, avec fenêtre, pour stockage, buanderie...). Parking devant la maison. A 5 min à pied du centre ville, de la gare SNCF (ligne L- la défense en 15min - St Lazare 23min) et du Haras de Jardy. surface : 130m2 au sol, 75m2 carrez. Ecole primaire : 600m Collège : 500m. Accès A13 et A86 facile. loyer : 2460€ / mois, dont charges : 100€/ mois : charges de la résidence (sécurisée), dont espaces verts et eau froide.