En vente Appartement 3 pièces 48 m2
| Ville | Périgueux |
| Code postal | 24000 |
| Type de bien | Appartement |
| Surface | 48 m2 |
| Nombre de pièces | 3 pièces |
| Prix | 124 000,00 € |
| Informations sur l'annonceur | |
|---|---|
| Annonce de professionnel |
|
| Agence | POP IMMO Périgueux - POP IMMO Voir toutes les annonces |
| Adresse | lieu dit les bas meygnaud |
| 24310 Périgueux | |
| Téléphone Fixe | 0627790403 |
| Portable |
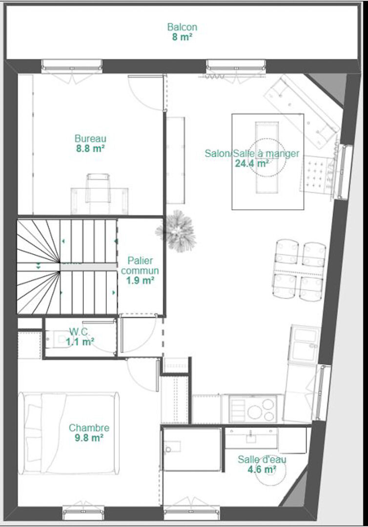
Description
Leon II - Situé 40 rue Léon Dessales à Périgueux, au 1er étage sur 2 d'un petit immeuble de seulement quatre appartements, cet appartement T2 bis de 48,70 m² constitue une opportunité rare sur le marché périgourdin. Il bénéficie d'un balcon de 8 m² et d'une rénovation complète en cours, offrant le confort d'un logement entièrement neuf. "Leon 2" propose une distribution moderne et parfaitement optimisée. La pièce de vie, d'environ 24,40 m², accueille le séjour et la cuisine ouverte, créant un espace convivial et lumineux, prolongé par le balcon. Une chambre indépendante, une salle d'eau contemporaine, un WC séparé, ainsi qu'une pièce bureau de 8,80 m² complètent l'ensemble. Cette pièce supplémentaire permet un usage polyvalent : télétravail, chambre d'appoint ou espace dédié selon les besoins, faisant de ce bien un véritable T2 bis. "Léon II" fera l'objet d'une rénovation intégrale : isolation, électricité, plomberie, menuiseries, revêtements, cuisine et salle d'eau neuves. Il sera livré clé en main, avec des prestations actuelles, répondant aux normes en vigueur (2026). Le DPE est estimé en classe C après travaux. Attention, les photos présentées sont des visuels 3D, permettant de se projeter dans l'aménagement final du logement. La livraison de l'appartement est prévue pour septembre 2026. "Léon II" est vendu entièrement rénové, avec garanties décennales, dans le cadre d'une opération menée par un professionnel. Il n'y a pas de stationnement privatif, mais le stationnement est gratuit et facile dans la rue, un avantage appréciable dans ce secteur. Cet appartement conviendra parfaitement pour un premier achat, un jeune couple, ou un investissement locatif recherchant un bien moderne, sans travaux et sécurisé juridiquement. Les charges de copropriété sont communiquées à titre indicatif, sur la base d'une estimation prévisionnelle. Leur montant définitif sera arrêté après la création officielle de la copropriété. Copropriété de 4 lots - dont 4 lots habitation. (). Charges annuelles : 600 euros.