En vente Appartement 3 pièces

Ville Cannes
Code postal 06400
Type de bien Appartement
Surface
Nombre de pièces 3 pièces
Prix 749 000,00 €
Informations sur l'annonceur
Annonce de professionnel
Agence Agencia Saint-Pierre
Voir toutes les annonces
Adresse 21, Quai St Pierre
06400 Cannes
Téléphone Fixe 0492928484

Description

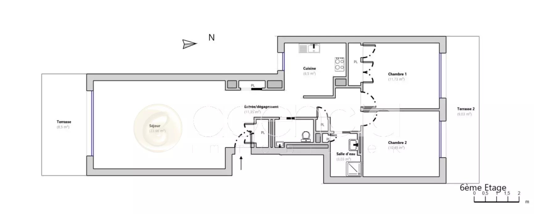
VUE MER de la BASSE CALIFORNIE - POINTE CROISETTE de CANNES. Nous vous présentons ce beau 3 pièces de 70 m2, traversant et climatisé, en étage élevé avec ascenseur, au calme absolu et sans vis-à-vis. Rénové et réagencé avec modernité, venez découvrir son spacieux séjour donnant sur la terrasse orientée SUD et VUE MER, ses 2 chambres avec la seconde terrasse, sa cuisine équipée indépendante, sa salle d'eau et son WC indépendant. Une cave est proposée avec le bien. Accès PMR. Possibilité de créer facilement une 2ème salle de bains. Taxe foncière 1492 euros, charges 130 euros par mois, eau incluse. Un BOX garage fermé XL est disponible en option. Les informations sur les risques auxquels ce bien est exposé sont disponibles sur le site Géorisques : georisques.gouv.fr

Les photos du bien

Les diagnostics