En vente Appartement 2 pièces 35 m2

Ville SAINT CHAFFREY
Code postal 05330
Type de bien Appartement
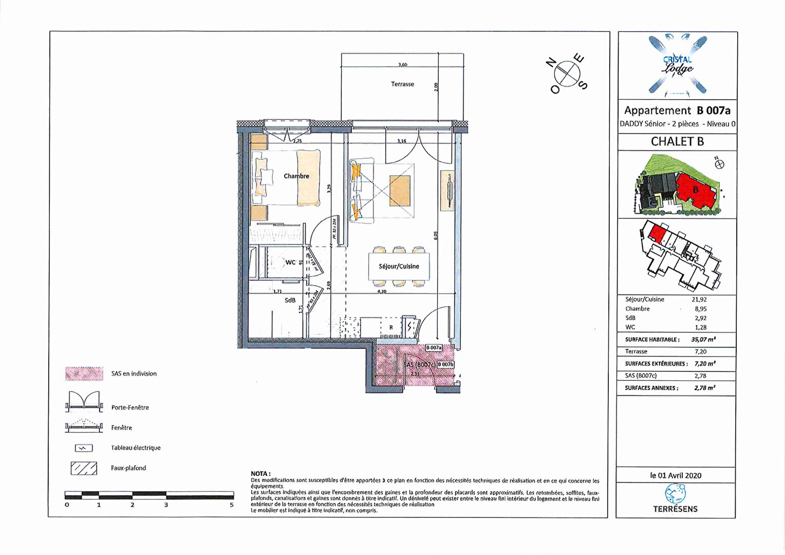
Surface 35 m2
Nombre de pièces 2 pièces
Prix 267 450,00 €
Informations sur l'annonceur
Annonce de professionnel
Agence Mountain Collection Serre Chevalier
Voir toutes les annonces
Adresse
05240 ARC 1800

Description

Découvrez ce 2 pièces idéalement situé à Chantemerle. Niché au coeur du village, il offre un cadre unique pour profiter pleinement de la montagne. D'une superficie d'environ 35.07m², ce 2 pièces se compose d'un séjour, cuisine, chambre, salle de bains. Très bon état général. Alliance parfaite entre confort moderne et authenticité alpine, ce bien saura séduire aussi bien les amateurs de ski que les amoureux de la montagne. Il comprend également un place de parking privative. La résidence propose des prestations haut de gamme : -Bar à tapas - Salle de jeux - Espace bien-être avec jacuzzi, saune et hammam. Emplacement privilégié , à quelques pas des remontées mécaniques, des commerces, des restaurants et du lac. Un bien idéal pour investissement locatif ou résidence secondaire à la montagne. A découvrir rapidement avec votre agence Mountain Collection Immobilier. Copropriété de 134 lots - dont 47 lots habitation.

Les photos du bien

Les diagnostics

Contacter