En vente Maison 5 pièces 180 m2

Ville ANTONY
Code postal 92160
Type de bien Maison
Surface 180 m2
Nombre de pièces 5 pièces
Prix 1 080 000,00 €
Informations sur l'annonceur
Annonce de professionnel
Agence Astra Immobilier
Voir toutes les annonces
Adresse
92330 SCEAUX
Téléphone Fixe 0177379982

Description

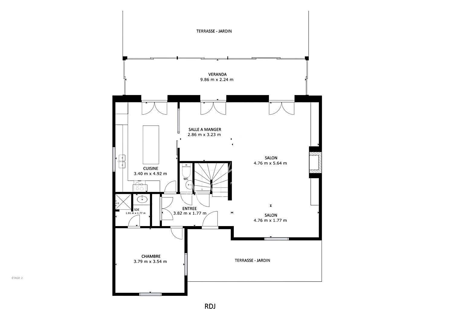
ANTONY Rue d'Alsace Lorraine Dans un secteur résidentiel recherché d'Antony, proche du RER et de la rue Auguste Mounié, sectorisé Jean Zay et Furet, Astra Immobilier vous propose cette maison contemporaine de 180 M2 sur sous sol total. Au rez-de-chaussée : entrée, triple séjour avec cheminée ouvrant sur terrasse véranda et jardin, cuisine entièrement équipée, chambre avec salle d'eau privative, WC invités. A l'étage : grand espace bureau, trois chambres dont une belle suite parentale avec salle de bains et dressing, salle de bains indépendante, WC séparé. Sous-sol total avec garage 4 véhicules, cave à vin et deux grandes pièces aménageables (cinéma, sport, espace loisirs...). (2.86 % honoraires TTC à la charge de l'acquéreur.)

Les photos du bien

Les diagnostics