En vente Appartement 3 pièces 52 m2
| Ville | La Ciotat |
| Code postal | 13600 |
| Type de bien | Appartement |
| Surface | 52 m2 |
| Nombre de pièces | 3 pièces |
| Prix | 229 000,00 € |
| Informations sur l'annonceur | |
|---|---|
| Annonce de professionnel |
|
| Agence | Jean-Pierre ROUVE Voir toutes les annonces |
| Adresse | |
| 13600 La Ciotat | |
| Négociateur | COMBAREL IMMOBILIER |
| Téléphone | 04-42-98-15-15 |
Description
Appartement T3 à vendre à LA CIOTAT Chez COMBAREL IMMOBILIER,
Véritable coup de c?ur pour toute notre équipe, pour cet appartement de plus de 52 m² qui se situe en plein c?ur du centre historique de La Ciotat, à deux pas de toutes les commodités.
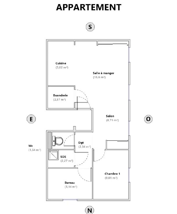
Ce dernier est composé d'un salon, d'une cuisine ouverte, d'une salle à manger, d'une chambre, d'un bureau, d'une salle d'eau, d'une buanderie, d'un WC et d'un dégagement.
L'appartement qui a un fort potentiel est agréable à vivre, bien agencé, convivial, fonctionnel, traversant et lumineux.
Il se trouve au 1er étage d'une petite copropriété de 4 lots à taille humaine et bien entretenue.
N'attendez pas pour venir découvrir cet appartement cocooning qui sera libre au 31 décembre 2025.
Visite virtuelle disponible sur notre site www.combarel-immobilier.com