En vente Immeuble 5 pièces 208 m2
| Ville | LYON |
| Code postal | 69003 |
| Type de bien | Immeuble |
| Surface | 208 m2 |
| Nombre de pièces | 5 pièces |
| Prix | 634 000,00 € |
| Informations sur l'annonceur | |
|---|---|
| Annonce de professionnel |
|
| Agence | Cocooning Conseil Voir toutes les annonces |
| Adresse | 1 rue des Quatre Chapeaux |
| 69002 LYON | |
| Téléphone Fixe | 0668233535 |
| Portable | 0668233535 |
Description
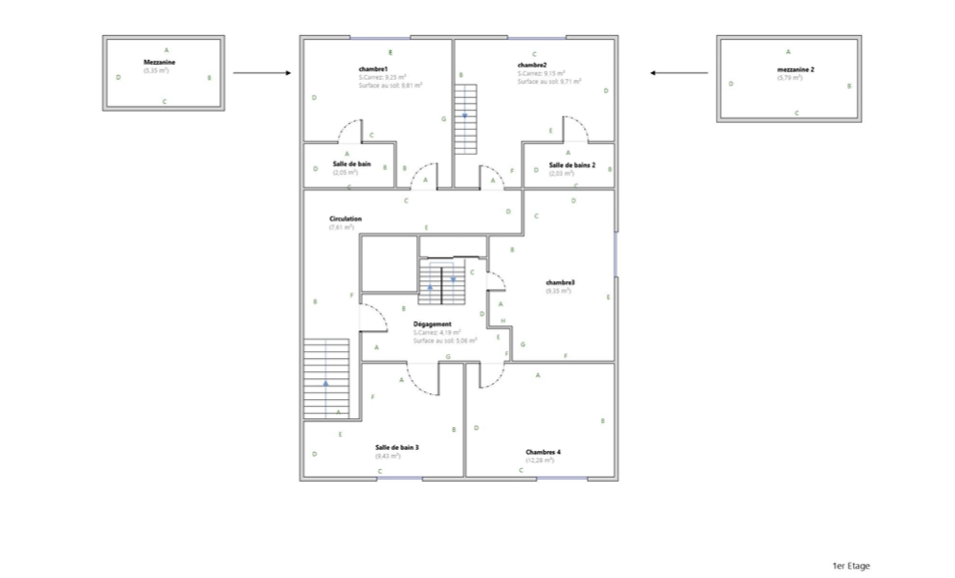
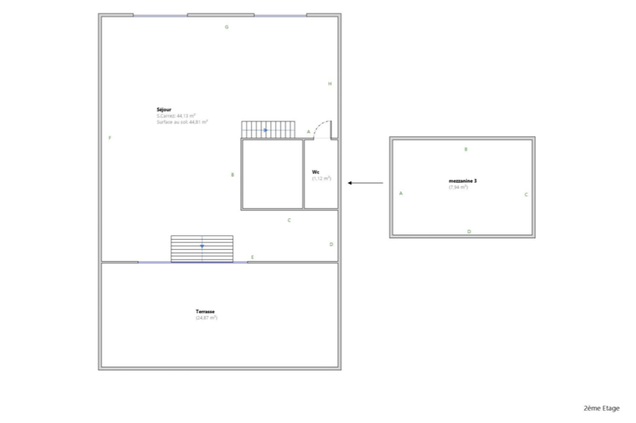
My Cocoon, l'agence aux honoraires fixes 2 %, vous présente : Rare à la vente. Idéalement situé rue Cyrano, à proximité immédiate du parc Bazin, à deux pas du tramway Reconnaissance-Balzac, cet immeuble en parfait état bénéficie d'un emplacement stratégique, particulièrement apprécié pour sa qualité de vie et sa forte demande locative. Implanté dans un environnement résidentiel dynamique, parfaitement desservi par les transports en commun, ce bien profite d'un cadre urbain équilibré, alliant calme, accessibilité et attractivité. Il s'agit d'un bâtiment indépendant à fort potentiel, élevé sur rez-de-chaussée et deux niveaux, aujourd'hui sous-exploité et offrant de nombreuses possibilités de restructuration et de valorisation. Actuellement cet immeuble est distribué de la minière suivante : - RDC : Entrée sur vaste garage avec ascenseur - Etage 1 : 2 studios indépendants et 2 chambres avec grande SDB - Etage 2 : Pièce de vie avec cuisine équipée et accès à une très belle terrasse sans vis-à-vis. Sa configuration permet d'envisager une requalification complète, avec la création de plusieurs logements indépendants, parfaitement adaptés au marché locatif du secteur. A titre d'exemple, le bâtiment peut accueillir : - un appartement de type 3 en rez-de-chaussée, - 4 studios indépendants au premier niveau, - un appartement de type 2 au dernier étage, ce dernier offrant une très belle terrasse avec vue dégagée sur la Part Dieu. Ce bien s'adresse à un acquéreur recherchant : - un actif à revaloriser, - une création de valeur par restructuration, - un fort potentiel locatif, et une excellente liquidité patrimoniale à terme. Une opportunité rare sur le secteur, destinée à un investisseur averti ou à un porteur de projet souhaitant développer un actif immobilier à forte valeur ajoutée. Contact : Patrice MARICA O6 68 23 35 35 Taxe foncière : 1839 euros DPE : C -/ GES : C Estimation des dépenses énergétiques : entre 1 270 euros et 1 800 euros/an. MY COCOON : 16 Rue Franklin, 69002 LYON