En location Boutique 10 pièces 336 m2
| Ville | JARVILLE LA MALGRANGE |
| Code postal | 54140 |
| Type de bien | Boutique |
| Surface | 336 m2 |
| Nombre de pièces | 10 pièces |
| Prix | 1 500,00 € |
| Informations sur l'annonceur | |
|---|---|
| Annonce de professionnel |
|
| Agence | Immo 3D Voir toutes les annonces |
| Adresse | 49 Boulevard Lobau |
| 54000 NANCY | |
| Portable | 0670790023 |
Description
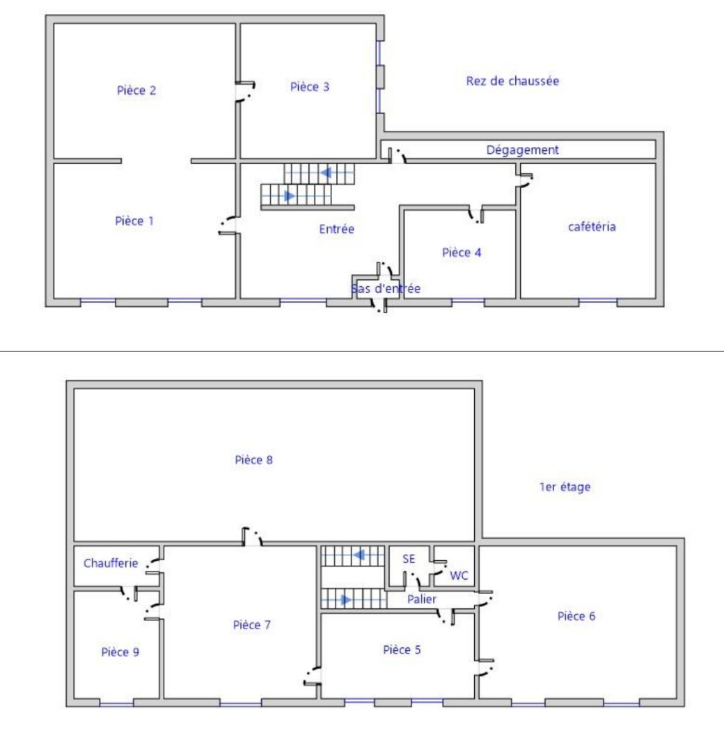
A louer à Jarville La Malgrange Implanté dans un environnement calme et facilement accessible, ce bâtiment professionnel bénéficie d'une belle visibilité en façade et s'adapte parfaitement aux activités tertiaires, commerciales ou de services. Développant une surface totale de 336 m² répartie sur deux niveaux et comprenant 10 pièces, il offre une organisation fonctionnelle permettant d'associer espace d'accueil ou de vente au rez-de-chaussée et bureaux à l'étage. Au rez-de-chaussée, vous disposez de quatre grandes pièces pouvant être aménagées en boutique, showroom ou espaces d'exposition selon vos besoins, ainsi qu'un espace cafétéria. A l'étage, le bien se compose principalement d'espaces de bureaux, offrant un environnement calme et propice au travail administratif, à la gestion ou à l'organisation de réunions. Le bâtiment bénéficie d'environ une dizaine de places de stationnement privatives. Pour toute information complémentaire ou pour organiser une visite, nous restons à votre disposition. Loyer 1500 euros, dépôt de garantie 1500 euros, honoraires d'agence 1500 euros Négociatrice : Walser Elsa O6 36 09 03 54 Les informations sur les risques auxquels ce bien est exposé sont disponibles sur le site Géorisques : www.georisques.gouv.fr Date de réalisation du diagnostic énergétique : 12/02/2026 Consommation énergie primaire : Vierge Consommation énergie finale : Vierge Emission de gaz à effet de serre : Vierge Estimation des coûts annuels d'énergie du logement entre 0 euros et 0 euros Prix moyens des énergies indexés au 1er janvier 2023 (abonnements compris)